Nuova scuola dell'infanzia e sala Multiuso a Molino Nuovo is a fourth prize proposal by Lopes Brenna ABCG architettura and Jacopo Carboncini for Comune di Lugano designed in 2012. It is located in Lugano Switzerland in an urban setting. Its scale is medium. Key material is wood. Concepts such as ribs modulation and structural praise are explored.

The proposal for the new kindergarten and multipurpose hall provides to rearrange the lot in question via a solution that has its strength in simplicity, bridging the gap to the free sides of the area: the volume of the school is supported throughout via Nola, while the cube‐shaped multipurpose hall marks the public entrance into via Ferri. In this way the volumes effectively reply both to its urban intensity, as public buildings in connection with the city, and to its function of prodrome respect to the internal vacuum. The volume of the school follows the type of its urban surroundings: set back from the road edge for the access and oriented along north‐south axis to support the development of the future green line that will go from here till the lake of Lugano. The multipurpose hall chairs the empty neighborhood public gardens by adding to its collective function the one of gate of the park.

Architectural approach

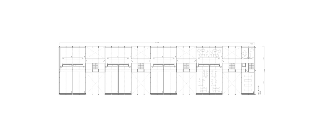
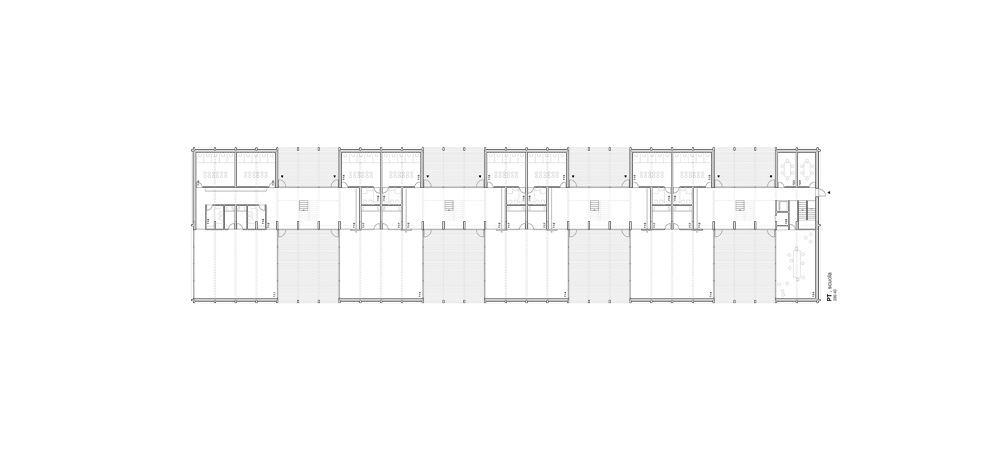
The kindergarten is developed in a serial way along its major axis. The classrooms are distributed along the length of the school building and they are dialectically organized on two axes: all the spaces required by the program are sorted in the cross sequence, while in the longitudinal interceding they follow each other in the composition of shared spaces. Public access from the street are unique and identifies the entire building protected by the fence. Inside, a footpath distributes mothers and children throughout the extension of the building. On the east side, the footpath defines the outdoor space used for gardening, an active part of the future green axis because it is adjacent to the road, while on the west side there are four covered porches that mark the entrances to the eight classrooms.

The access space, composed by wardrobe, lobby and stairs, is part of the shared space between two classroom. It is characterized by a strong double‐height projection on the covered, outside part of the classroom, and on the park. On the other hand spaces specifically allocated to each classrooms, coming with dining hall and bathrooms, have a more introverted character because the direct view of the park outside is closed in favor of side windows that open towards the light in the double height spaces, and from here to the garden. The classrooms at the ground floor have direct access to outdoor learning spaces and, thanks to the permeability of the side windows and the sequence of classrooms, they offer a rich atmosphere between themselves and in relation to the park outside.

The multipurpose hall is attached to Via Ferri protecting the public park in the center of the lot. Indeed, access to gardens, sports fields and the hall itself is the same, and both users take the same alleyway. The hall is a two‐storey cubic object with walls made of concrete and glass arranged alternately in relation with the context: on the ground floor the windows welcome visitors at the entrance and light up the offices in the rear, while the foyer on the first floor enjoys the view towards the lake and the multipurpose room is looking towards the inner park. The alternate architectural scheme is clearly legible in the plans of the building: the entrance space with the main stair and the offices are separated by a strip of service spaces; the same is repeated on the first floor, rotated 90 degrees, with a separation block between the foyer and the main room.

Building strategy

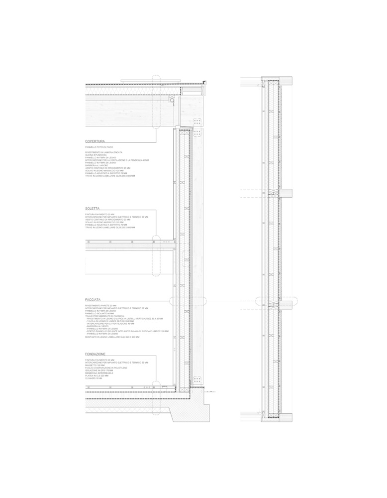
The kindergarten employs a major wooden structure that marks the rhythm of the entire building. The choice of wood as a structural material can easily reach the required energy standards and permits a quick construction process with tested details. Moreover, the repetitive structure allows the subdivision of the building process into different phases. The new multipurpose hall sizes 17.3 m x 17.3 m. The structure consists of concrete walls with cavity insulation, and columned structure with metal and wooden curtain walls that reflect the materiality of the fixtures. The slab between ground and first floor is also supported by interior walls, while the roof of the building is a coffered ceiling supported only by its perimeter. By this way in the first floor there aren’t structural barriers to internal flexibility.

0045-LBA.ABC.JCA-LUG.CH-2012 — Posted in 2013 — Explore more projects on education and school — Climate: oceanic / maritime and temperate — Coordinates: 46.014815, 8.958288 — Engineer: Borlini & Zanini Sa — Structural engineer: techno-nrg Sagl — Views: 12.540