Palazzo del Cinema di Locarno is a proposal by Campomarzio for Locarno Municipality and Stella Chiara Foundation designed in 2012. It is located in Locarno Switzerland in an urban setting. Its scale is medium. Key material is concrete. Concepts such as vault water and zenithal light are explored. Review the 2 proposals for the same competition.

The proposal for the new “Palazzo del Cinema di Locarno” was intentionally derived from the specificity of the site. The construction area is part of the medieval city and belongs to the monumental complex of the “Castello Visconteo” with the “Rivellino”. It is part, more precisely, of the old fortified port on the lake. The intention to recuperate the original walls, submerging them in a large stretch of water, was the first decision taken. By doing so it would be possible to complete the archeological park that was planned long ago, displaying in a consistent way an important part of the urban history of the city.

Locarno was conceived as a “city on the water” and was located on the northern tip of Lake Maggiore, whose margin was progressively reduced and filled with rubble and river detritus coming from the river Maggia. Thus the decision to exhibit the archeological ruins and the presence of the water is based on the attempt to manifest the strict relationship that Locarno has always had with the lake. From an urban point of view the construction site is placed between two of the most important public spaces of Locarno: Piazza Grande and Piazza Castello. For this reason we have considered that a new square would be unnecessary. Instead we have preferred to leave the empty space un-built, submerging the archeological ruins with water.

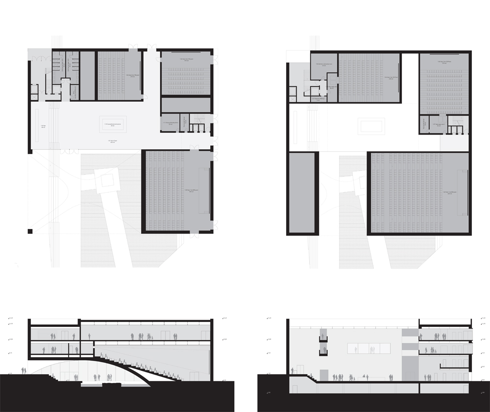
The excavation of the medieval ruins requires the demolition of the old school designed by the architect Bernasconi: a building that was constantly modified and that could be difficultly rearranged to contain the new functions required by the architectural program. The proposed building is a new white concrete volume based on a 48×48 meters square plan. The façade is characterized only by a large opening that covers the archeological ruins forming an entrance to the building.

0061-CAM-CH-2012 — Posted in 2013 — Explore more projects on cultural cultural center and mixed use — Climate: humid subtropical and temperate — Coordinates: 46.168099, 8.794691 — Collaborator: Weber + Winterle Architetti — Views: 5.532