Plaza del País Valencià is a winning proposal by Javier García Solera for Ayuntamiento de Picanya designed in 2010. It is located in Picanya Spain in an old town setting. Its scale is large with an estimated budget of 757.316 €. The concept of urban transformation is explored.

El proyecto de la nueva plaza del País Valencia de Picanya la configura como un espacio abierto desarrollado en continuidad con el área peatonal de próxima realización – se pretende de este modo crear prolongación del espacio público y control de escala en todo el espacio ganado para el disfrute ciudadano reforzando a su vez la presencia patrimonial. Para ello se delimita el espacio intervenido por las calles Major, Sant Antoni, Sang, Senyera, Plaça Constitució y Capella – más allá de ella, nada se afecta por la intervención propuesta – en el interior de este anillo perimetral se plantea la continuidad natural, sin alteración de niveles de suelo, de los pavimentos previstos en la intervención que existe en proyecto – también en las aceras que completan el área expresada – la plaza del País Valencia queda así definida como un ensanche generoso del conjunto del área peatonal que define el centro histórico de la población.

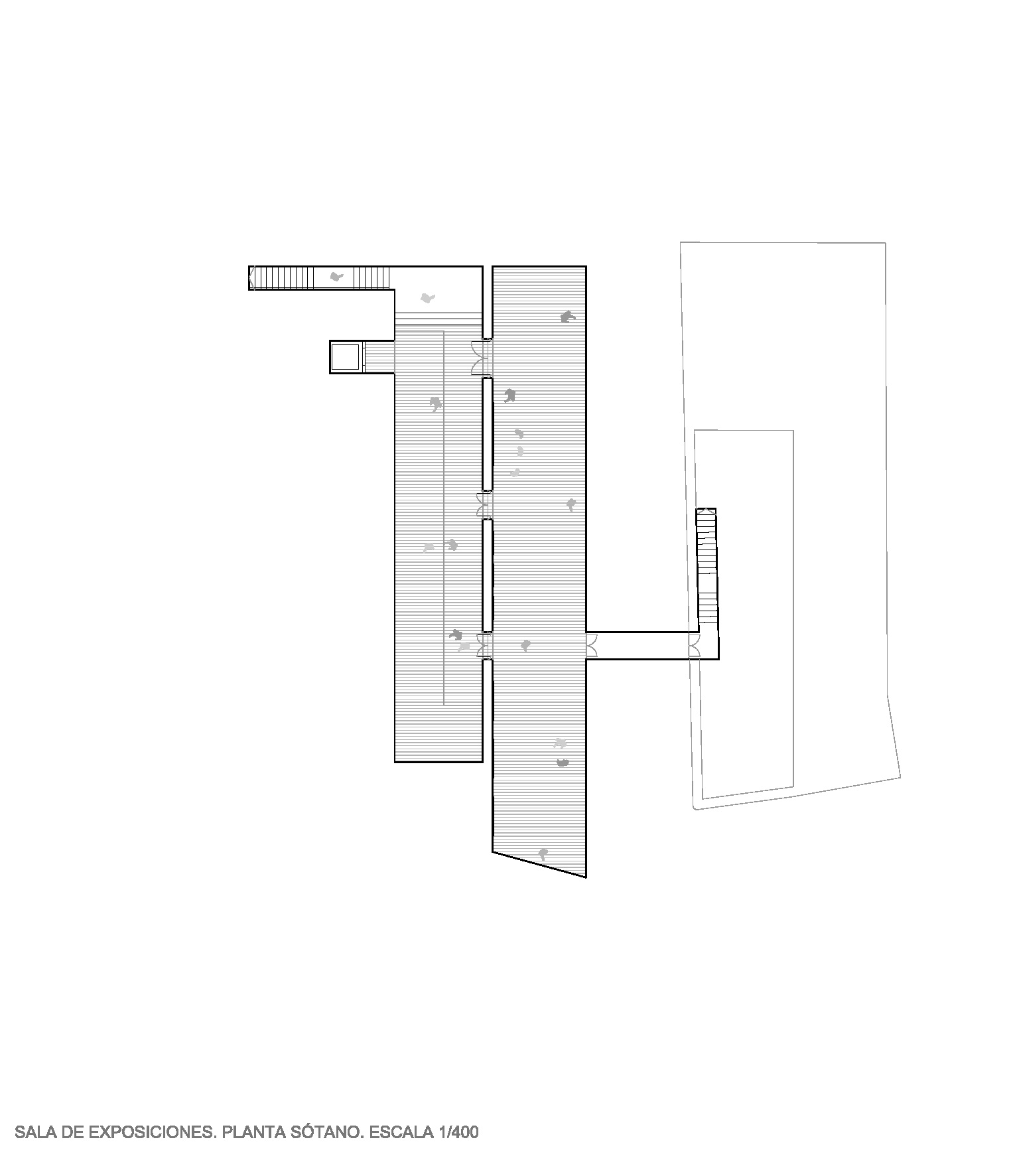
En este espacio triangular se producen las actuaciones que lo dotan de centralidad y aseguran su potenciación como espacio público de calidad – como principal intervención se produce la inclusión de dos patios en paralelo que permitan una configuración cambiante y matizada de la sección de la plaza a la vez que mejoran sus prestaciones como espacio público – el primer patio, deprimido respecto a la plaza, se incorpora a la sala de exposiciones subterránea, aminorando ese carácter y recuperando las tres puertas históricos (hoy tapiadas) para su intercomunicación – permite así una multiplicación de las posiblidades del fondo de patio – el segundo patio, paralelo a éste, permite preservar del derribo la hermosa casa blanca que ocupa el frente norte de la plaza y poner en valor la futura edificación del ayuntamiento como elemento nuevo, contemporáneo y abstracto que sirve de fondo, sin presidirlo, al conjunto de la nueva plaza – para esta edificación se propone una nueva ordenación del volúmen, con respecto a la edificabilidad máxima total, que permite la operación propuesta y aminora la presencia de la medianera excesiva de la edificación vecina.

Se propone un escenario tratado como una plataforma en «L» quebrada que se apoya sobre el techo de la sala y resuelve por si sóla las necesidades de escena y los accesos a la misma, a la sala y al patio inferior – un ascensor acristalado completa las necesidades de accesibilidad a la sala de exposiciones – sobre la plataforma, un pórtico metálico, ligero y de escasa presencia equipa toldos, pantalla de proyección y conexiones eléctricas y de sonido para facilitar la realización de cualquier tipo de actividad con aforo público – la pantalla será retroproyectada desde el nuevo edificio adminsitrativo. El resto de actuaciones propuestas vienen a reforzar y matizar esa intención general de espacio continuo y público de calidad – se ordena en el frente de calle a la prolongación del Carrer Major todo los elementos estáticos complementarios: farolas, bancos y arbolados existente formando así una suerte de borde o límite a la actuación – también conservan su posición las palmeras que dialogan con la fachada de la antigua casa blanca ayudando a imprimir en ella el valor de la memoria – el resto de palmeras que definen el actual límite sureste de la plaza, se redistribuyen en el extremo del nuevo espacio público para generar allí mayor densidad de arbolado y por tanto mayor posibilidad de sombra sobre el mobiliario de los locales y cafeterías que usan la plaza como terraza.

Dos operaciones finales, de muy distinto carácter contemplan la propuesta de intervención – la dotación del espacio de los implementos técnicos que permitan un área wi-fi pública y el pintado en blanco de las casas que configuran los dos frentes tratados de la actual plaza – las fachadas de las casas dee los frente norte y sureste se pintarán de blanco en su totalidad cuando se trate de casas históricas y sólo su planta baja hasta la línea de vuelos cuando se trate de edificaciones modernas de mayor altura. Dos únicos materiales determinan el carácter de intervención – el pavimento de adoquín de hormigón ya previsto para la zona y la madera que resuelve los planos de bancos, escenario y lamas de frente de fachada del nuevo edificio – los necesarios elementos metálicos complementarios serán en acero galvanizado.

0418-JGS-VLC.ES-2010 — Posted in 2013 — Explore more projects on public space and square — Climate: temperate and mediterranean — Coordinates: 39.435293, -0.435473 — Team: Javier García-Solera Vera — Collaborator: Ernesto Martinez Arenas, Pilar Fructoso Vera, Dolores Perez Paya, Carlos Chilleron Filoso, Adrian Algarra Reig, Leofrida Bonete Poveda, Esteban Parres Ferri — Views: 6.055