25 rooms is a proposal by OFFICE Kersten Geers David Van Severen designed in 2008. It is located in Ordos City China in a desert setting. Its scale is medium with a surface of 1.000 sqm an estimated budget of 1.000.000 € and a ratio of 1.000 €/sqm. Key material is brick. Concepts such as grid courtyard and underground are explored.

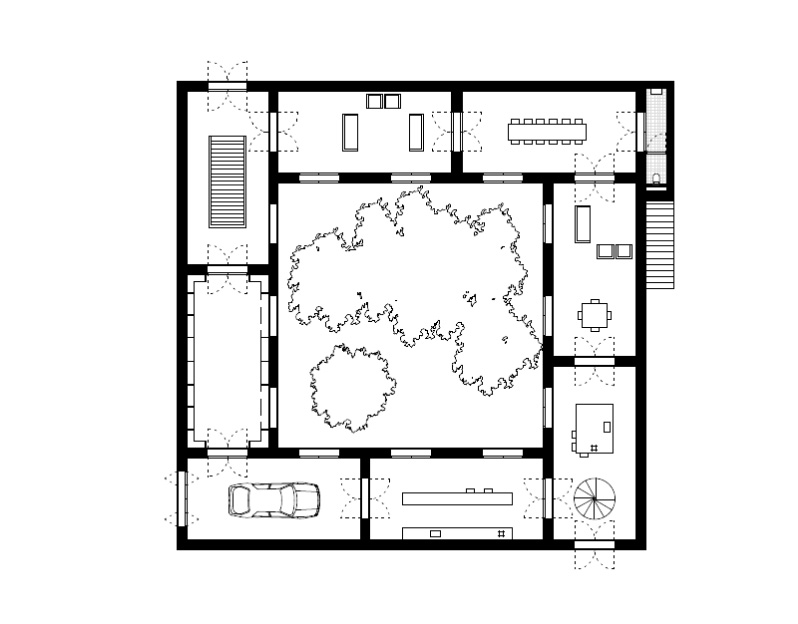
Part of the ‘Ordos 100’-project, selected by Herzog & De Meuron, curated by Ai Weiwei. The design for a 1,000-square-meter residence in the Mongolian desert is reduced to the design of just one component, a room: a rectangular space with four entrances and no prescribed function. The room receives its individual character only through its ceiling height and its relative position in the house. Twenty-four identical rooms are organized over three stories, on each floor time forming an enfilade around a central atrium that is protected from harsh winds and sand storms. The inner garden is the actual outdoor space of the house, to which all of the rooms are oriented. Two flights of stairs, which stand in the middle of the room like pieces of furniture, provide the connection between the stories.

Because the building is sunken into the ground, only the top story can be seen in the residential neighborhood, like the tip of an iceberg. As in traditional Mongolian settlements, the house forms a microclimate: its underground position profits from the relatively constant ground temperature, tempering the extreme temperatures of the Mongolian climate. The structural base of the project is a massive concrete base, which by its weight prevents the house from being pushed up by the water force. The concrete wall decreases in width towards the top. Inside, the walls between rooms are doubled, and the space in between used to house the impressive array of ducts, vents, and other technical equipment required by a house of this comfort level. All rooms are equipped with double glass doors, allowing for each room to be closed off separately to maintain it’s singular logic. The luxurious aspect of this residence is not in an extravagant form or use of materials, but in the abundance of spaces. The enigmatic twenty-fifth room on the roof is for the attendant: a lookout post on a thick wall.

0422-DVS-DSN.CN-2008 — Posted in 2013 — Explore more projects on housing and residential — Climate: hot and semiarid — Views: 16.489