Primarschule Schoren is a winning proposal by Lorenz Architekt for Canton of Basel and Bernhard Gysin designed in 2013. It is located in Basel Switzerland in an outskirt setting. Its scale is large. Review the 3 proposals for the same competition.

Das Projekt nutzt das vorgegebene Programm, um das Schoren-Quartier neu zu interpretieren. Der Wohnungsbau ergänzt die städtischen Strukturen und erzeugt mit dem Blockrand eine Verdichtung, die dem Quartier urbanen Charakter verleiht. Der zweite Arealteil wird durch die Schule besetzt, welche sich von den Quartiersbausteinen der Nachbarschaft absetzt und sich als öffentliches Haus im neuen Zentrum etabliert. Der grosse, lagernde Baukörper der Schule bildet das horizontale Gegenüber zu den vertikalen Wohntürmen im Osten und markiert mit seinem Vorplatz den zentralen Ort am Schorenweg. Über den städtischen Zwischenraum von Schule und Wohnblock wird das Quartier in die Tiefe erschlossen, wo sich der Pausenhof als vielfältig nutzbarer Freiraum öffnet. Längs der Schule und zum Schulhof orientiert, bietet das öffentliche Schulhaus gedeckte Aussenbereiche, die das Haus und den Stadtraum miteinander verweben.

Das Schulhaus, mit den öffentlichen Freiflächen nach aussen und der Blockrand, mit seinem privaten Wohnhof gegen innen, komplettieren die Planungen und die bestehenden Stadtstrukturen auf subtile aber selbstbewusste Weise. Wohnhaus und Schule beziehen sich aufeinander, bestechen aber in Ihrer Typologie und durch die klar formulierten Aussenräume als eigenständige Häuser. Der neu entstandene Ort stärkt den Charakter des Schoren und gibt dem Quartier die Chance aus dem‚ Dornröschenschlaf? zu erwachen.

Freiraum

Das Konzept folgt der Anforderung einer Schule ‚im Grünen? Einerseits blicken die Kinder in die Baumkronen der Linden auf dem Quartierplatz, andererseits umgarnt ein Baumhain die Schule zum Quartier im Süden. Die präzise Setzung des Gebäudes definiert vielfältige Aussenräume: Die intimen Nischen des Baumhains für den Rückzug, sowie die grossen Flächen der Pausenhöfe für Spiel und Bewegung. Der Quartiersplatz vor der Schule öffnet sich zum Strassenraum des Schorenwegs und bietet für Schule und Quartier hohe Aufenthaltsqualität. Gleichzeitig formulieren die Linden in ihrer Rasteranordnung die klare Adresse der Schule, auch im Hinblick auf die Quartiersnutzung von Aula, Foyer und Sporthalle. Der Wohnhof bietet den Bewohnern innerhalb des Blockes einen grosszügigen aber privaten Bezug zum Grün. Abwechselnd dichte Bepflanzung und offene Flächen werden entsprechend bespielt. Die von der Allgemeinheit genutzten Mehrzweckräume im Parterre erhalten ihr Pendant im gemeinschaftlich genutzten Teil des «Schorenhofs».

Baumbestand und Neupflanzungen

Die wertvollen Bestandsbäume können zum Grossteil erhalten werden. Ein nachhaltiger Erhalt der prächtigen Urweltmammutbäume wäre aufgrund der artspezifischen Empfindlichkeit gegenüber Bodenveränderungen und der Verwurzelung mit den bestehenden Mauerbauten leider nur sehr schwer umzusetzen. Es wurde daher beschlossen, die Bäume zu Gunsten der Freiraumqualität zu opfern und stattdessen auf dem Areal drei Stieleichen zu platzieren, welche sich an ihren bevorzugten Standorten möglichst unbeeinträchtigt entfalten können. Die periphär stehenden Bäume werden in die neue Gestaltung integriert. Der japanische Ahorn bleibt als prächtiges Relikt der gärtnerisch gepflegten Novartis- Anlage erhalten. Künftig werden dutzende Neupflanzungen mit direktem Bodenanschluss die Baumbilanz mehr als aufheben.

Ausser den Krimlinden werden rein einheimische Gehölze verwendet. Im Baumhain stehen Bäume wie Feldahorne und Waldföhren in chaussierten Bereichen oder in den waldartig bepflanzten Staudenflächen. In diesen Flächen stehen auch die Stieleichen als grosse Zukunftsbäume. Die Dächer der Bauten Schorenhof und Schule werden extensiv begrünt. Durchlässige Substrate werden mit einheimischer Flora eingesät oder begrünen spontan. Die Dächer wirken als Trittstein für Flora und Fauna der nahen Trockenstandorte im Dreiländereck und erfüllen ihren Beitrag an der Vernetzung von wertvollen Biotopen. Zudem halten sie das Regenwasser zurück und bewirken durch ihre Retention einen verlangsamten Abfluss von anfallendem Regenwasser. Das Restwasser wird vor Ort der Versickerung zugeführt.

Das Haus – die Schule

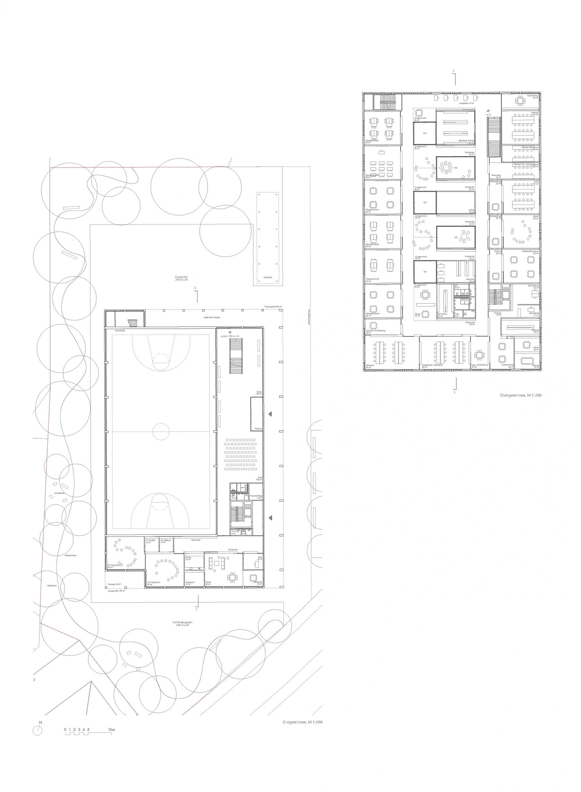
Der öffentliche Charakter des Schulhauses wird im Innern weitergeführt. Die grosse Raumeinheit von Foyer und Aula ermöglicht vielfältige Nutzungsszenarien für Schüler und Quartiersbewohner. Der direkte Bezug zur Sporthalle schafft spannende Raumerlebnisse und bietet sogar den Durchblick zu den Aussenräumen im Süden. Kindergarten und Tagesstrukturen komplettieren das Raumgefüge auf Eingangsebene. Über die grosszügige Treppenanlage öffnet sich im Obergeschoss die weite Lernlandschaft, die durch die Bezüge nach aussen und zu den innen liegenden Höfen (Aussenklassenzimmer) einen transparent-fröhlichen Charakter erhält.

Der architektonische Ausdruck ist durch die horizontale Gliederung des Baukörpers bestimmt und spiegelt die innere Aufteilung der Geschosse wider. Auch die Fassade thematisiert den Übergang vom öffentlichen Stadtraum in das Innere: Neben den freistehenden Stützen der Zugangsbereiche bietet die gegliederte Blechfassade unterschiedliche Öffnungsgrade vom transparenten Fenster, über die ornamentierten Läden bis hin zum geschlossenen Fassadenpanel. Im Innern wird das Prinzip der verkleideten Konstruktion weitergeführt und ermöglicht die Erschliessungsbereiche von den Aufenthaltsräumen zu unterscheiden. Holz (Douglasie 3-schicht Platten), als Material des Ausbaus, wird unter Beachtung des Brandschutzes eingesetzt, um dem Nutzer haptische Qualitäten und die Erlebbarkeit der Materialien näher zu bringen.

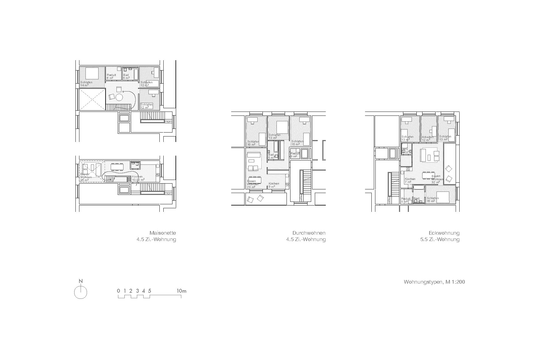
Der Hof – das Wohnen

Zentrale Idee des Wohnungsbaus ist das städtische Wohnen am Hof. Für alle Bewohner ist sowohl der Wohnhof nach innen, als auch der Bezug zum urbanen Raum nach aussen erlebbar. Aus dieser städtebaulichen – architektonischen Grundanlage des Blocks leiten sich vielfältige Formen des modernen Wohnens ab: Erdgeschosseinheiten können als Hochparterrewohnungen organisiert werden und bekommen zum Hof private Terrassen. In den Hauptgeschossen befinden sich die durchgesteckten Wohnungen mit komfortablen Balkonen. Richtung Süden gibt es einen Anteil an Maisonette Wohnungen, die dem Anspruch der individuellen Hauseinheit im Block gerecht werden. Im dritten Obergeschoss öffnet sich das Attikageschoss mit dem weiten Blick ins Quartier. Die grossen Übereckwohnungen vervollständigen den vielfältigen Wohnungsmix. Architektonisch orientiert sich der Wohnungsbau an der Nachbarschaft und baut gegen aussen seine städtische Haltung auf. Zum Hof wird die Fassade aus der Logik der privaten Freiräume entwickelt: vorgelagerte Balkone und Terrassen schaffen in Ihrer Leichtigkeit einen spielerischen Übergang zum Grün des Hofes und erinnern wieder an die leichte Fassade des Schulhauses nebenan. Die Referenz der Baumgartnerhäuser wird in zeitgemässer Form übertragen und in der Konsequenz des geschlossenen Blockes – von innen nach aussen – zugespitzt.

0806-LOR-BSL.CH-2013 — Posted in 2013 — Explore more projects on education housing residential and school — Climate: oceanic / maritime and temperate — Coordinates: 47.570952, 7.609869 — Views: 3.765