Primarschule Schoren is a proposal by Osterhage Riesen Architekten for Canton of Basel and Bernhard Gysin designed in 2013. It is located in Basel Switzerland in an outskirt setting. Its scale is large. Review the 3 proposals for the same competition.

Das frei werdende Areal ermöglicht das Weiterbauen und Ergänzen der bestehenden Stadtstruktur. Als städtebauliche Fortsetzung der nordöstlichen, fragmentierten Blockrandbebauung ergänzt die Wohnüberbauung durch Ihre Geometrie und Massstäblichkeit die bestehenden Bauten. Durch die klare und konzentrierte Anordnung der Wohnüberbauung in dem vieleckigen Grundstück wird einerseits für das Schulhaus und dessen Umgebung im Süden des Areals ein grosszügiger Bereich freigespielt und andererseits polygonale Zwischenräume zu den übrigen Wohnstrukturen generiert, welche als verbindende und zugleich abstandhaltende Elemente funktionieren.

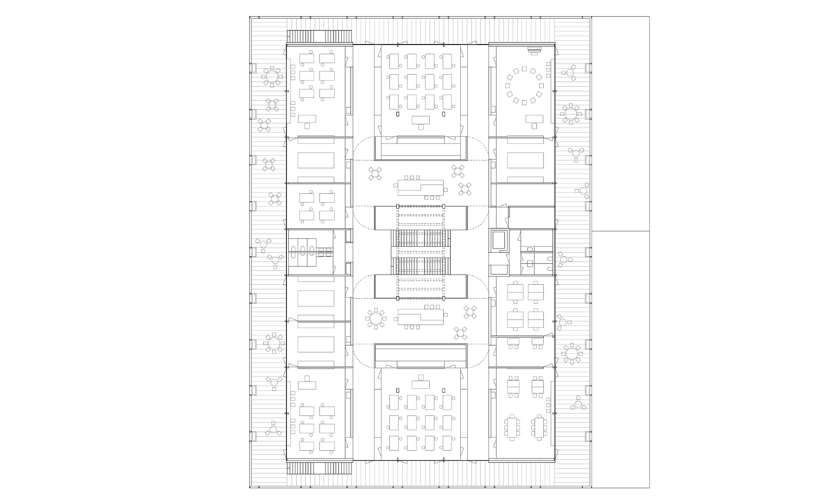
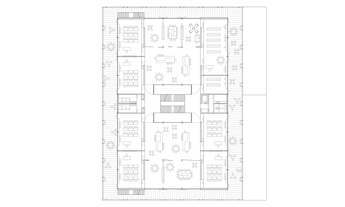
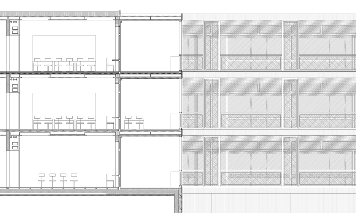
Das Schulhaus als solitärer Gebäudekörper ist zur Strasse leicht abgedreht und unterstreicht durch den frei werdenden Vorplatz dessen Bedeutung für das Quartier und die Bewohner. Schulhaus: Die flexibel bespielbare Multifunktionszone mit den Gruppenräumen soll frei gestaltet und möbliert, und den jeweiligen Bedürfnissen angepasst werden können. Von hier gelangen die Schülerinnen und Schüler in die Schulzimmer, welche alle über ein grosszügiges möblierbares Aussenschulzimmer verfügen. Die Offenheit und Leichtigkeit des Gebäudeinneren zeigt sich auch im äusseren Ausdruck durch die Filigranität und Feinheit der Bauteile. Die Verglasungen der Schulräume zu den Aussenschulzimmern vermittelt räumliche Grosszügigkeit und Transparenz. Elemente aus der Gartengestaltung sowie flexibel und individuell gestaltbare Begrünungen erzeugen eine angenehme Atmosphäre und bringen die Natur auch den oberen Geschossen direkt ins Schulzimmer.

0807-ORT-BSL.CH-2013 — Posted in 2013 — Explore more projects on education housing residential and school — Climate: oceanic / maritime and temperate — Coordinates: 47.570952, 7.609869 — Team: Jan Osterhage, Philipp Riesen — Consultant: Feddersen & K lostermann — Landscape: Dr. Lüchinger, Walthert AG — Views: 2.631