Redéploiement du Centre National des Arts du Cirque is a completed project by NP2F for Ministère de la Culture designed in 2011 and completed in 2014. It is located in Châlons-en-Champagne France in a riverside and park setting. Its scale is medium with a surface of 4.500 sqm an estimated budget of 5.200.000 € and a ratio of 1.156 €/sqm. Key materials are metal and concrete. The concept of adaptable reuse is explored.

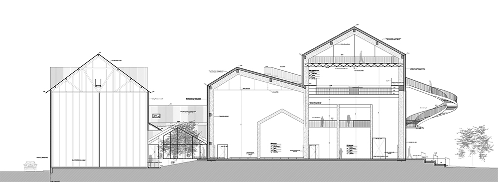
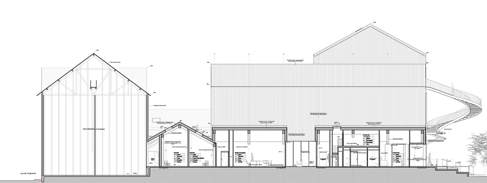
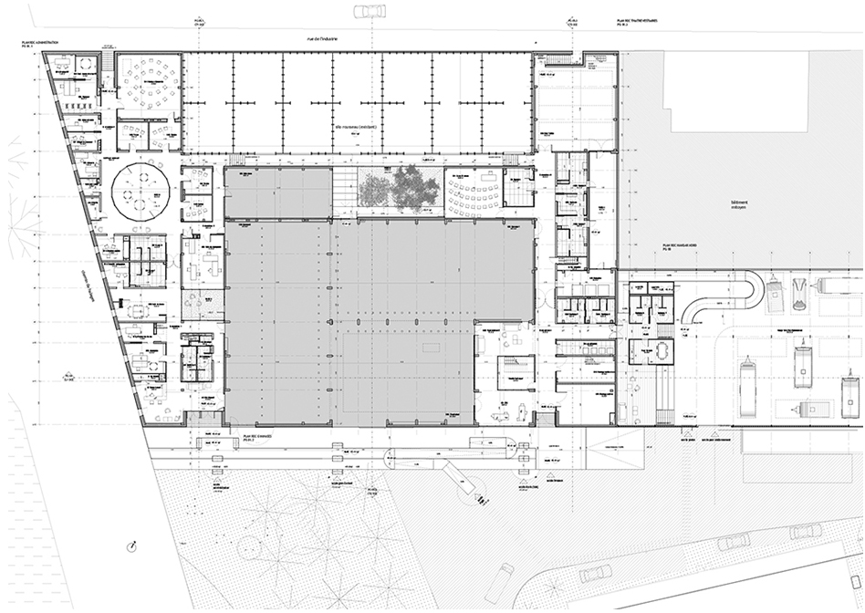
La question du redéploiement de l’école nationale du cirque de Chalons en champagne n’est pas une question commune, elle relaie des enjeux plus vaste d’image et d’ambitions de la ville, mais aussi d’image ou «LABEL» d’une école internationale du cirque. Cette «envie» d’ouverture sur le monde, se couple avec des données de positionnement géographique et spatiale du site des silos. Il nous semble alors que le site véhicule des besoins et des envies de «largesse», et une envie de dialoguer avec «le reste», avec le territoire qui le contient, proche comme lointain. L’ancienne coopérative agricole et son «parc», comme une limite de l’urbanisation mais aussi comme une ouverture vers le «grand», ne s’implantent pas neutralement sur le territoire; balafrée par un auto-pont, elle est une occasion spatiale unique, l’appréhension du site dans son entièreté nous semble ici évident, comme un «morceau» à part. Nous avons imaginé des volumes (halles industrielles), adossés, empilés, enchevêtrés, mutualisé, fusionnés et hybridés, au service d’une «synergie» d’ensemble, d’un «tout». Nous avons imaginé aussi un parc, le plus ouvert possible construit sur des sédiments du passé, qui s’installe dans une complémentarité «fusionnelle» en vis-à vis du «vaisseau» oblongue de l’école qui affiche et ouvre réversiblement sa façade droite et massive sur le parc. La force du parc «vide» et de la compacité des bâtiments, mais aussi et surtout la «dualité» qu’ils évoquent constituent l’essence du projet, ils régissent les fonctionnements et les spatialités de l’ensemble.

0903-NP2-FR-2011.14 — Posted in 2014 — Explore more projects on cultural mixed use and music school — Climate: oceanic / maritime and temperate — Coordinates: 48.948932, 4.361525 — Views: 8.072