Scuola dell’infanzia di Tenero is a second prize proposal by Lopes Brenna and Marini Verhaeghe Marques for Municipio di Tenero-Contra designed in 2014. It is located in Tenero-Contra Switzerland in an outskirt setting. Its scale is medium. Key material is concrete. Filippo Bolognese collaborated as visualizer. The concept of courtyard is explored.

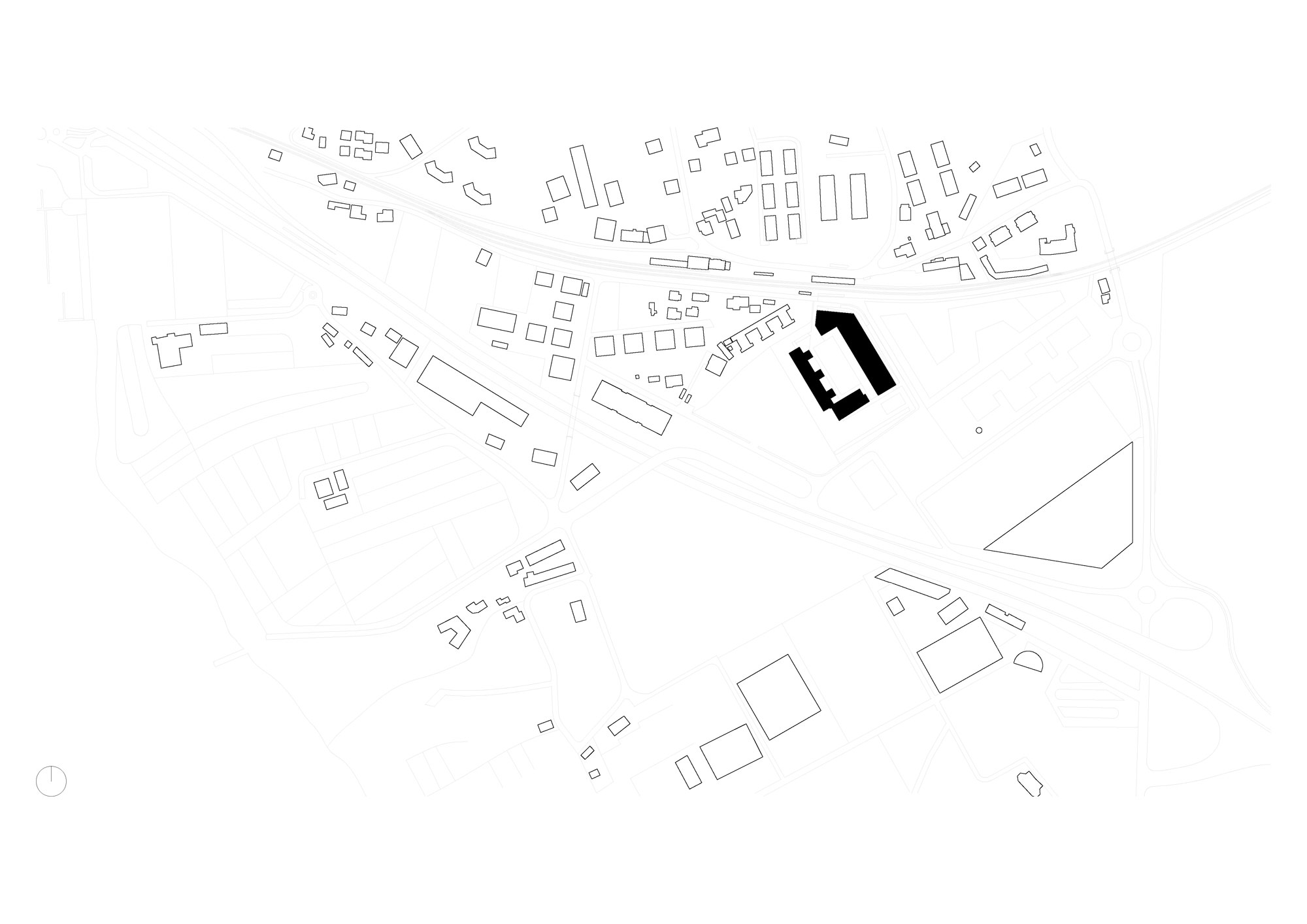
Il progetto della sede per la nuova scuola dell’infanzia si inserisce all’interno del fondo n° 75 e occupa la porzione di terreno che si sviluppa lungo i confini settentrionale e orientale del lotto, permettendo un uso razionale e parsimonioso dell’area a disposizione. La strategia consiste nello stabilire con la scuola elementare una relazione capace di creare uno spazio che si identifichi come “luogo”. La nuova proposta si integra con l’edificio esistente adottandone l’attitudine progettuale:

– Metrica strutturale chiara che definisce il programma delle sezioni;
– Continuità di trasparenza e permeabilità a livello del piano terreno;
– Reazione diretta alla forma in pianta dell’edificio esistente.

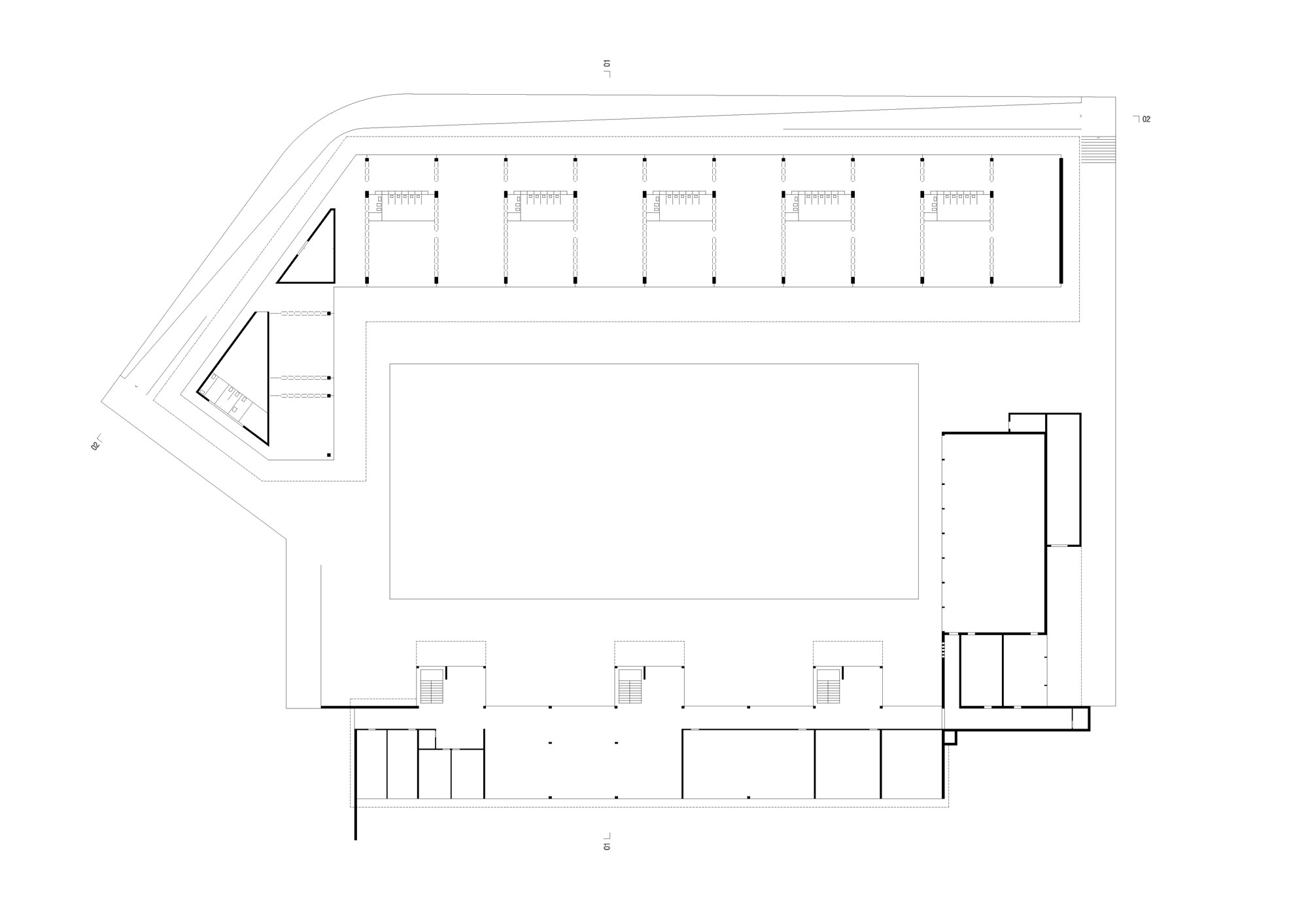
Ne risulta un luogo con chiare identità e riconoscibilità, dotato di uno spazio esterno intimo e capace di inquadrare le montagne vicine. Per quanto riguarda il fondo 809, si prevede un’area verde adibita a parco ed eventualmente attrezzata, che possa essere usufruita sia dagli utenti delle scuole che dalla città. Tale scelta lascia aperte possibilità future per l’insediamento di ulteriori attività. Dalla strada, si accede all’edificio tramite due rampe che risolvono in modo agevole la transizione tra la quota di via Cartiera (futuro percorso ciclo-pedonale) e la quota del giardino (corrispondente alla quota della scuola elementare). Dalle rampe si raggiunge uno spazio ampio il cui carattere intimo definisce il passaggio tra l’area pubblica della strada e l’area privata della scuola. Tale spazio, non solo risolve la distribuzione e l’accesso alle sezioni, ma funziona anche come luogo di incontro tra genitori, insegnanti e alunni, oltre che dare la possibilità ai refettori delle sezioni di aprirsi verso di esso, divenendo in tal modo un possibile prolungamento degli spazi interni della scuola. Gli accessi esistenti della scuola elementare sono mantenuti. La semplicità dell’edificio, corrisponde alla chiarezza del programma.

Una trama regolare di pilastri crea un sistema modulare all’interno del quale si organizzano le sezioni e i relativi spazi, tutte uguali tra loro. Ogni sezione prevede un’entrata indipendente così come il refettorio per la scuola elementare, mentre gli approvvigionamenti e la raccolta dei rifiuti usufruiscono di un accesso secondario al quale possono accedere anche i mezzi per il carico e lo scarico. La contiguità degli spazi interni della scuola riduce al minimo l’area di sola circolazione, garantendo al tempo stesso un’efficace distribuzione trasversale e l’autonomia delle sale. Gli spazi principali delle sezioni, quali l’aula per le attività tranquille e lo spazio per le attività in movimento, si aprono verso il giardino attraverso pareti vetrate, permettendo un contatto visivo diretto tra l’interno e l’esterno.

0299-LBA-CH-2014 — Posted in 2014 — Explore more projects on education and school — Climate: oceanic / maritime and temperate — Coordinates: 46.176392, 8.851786 — Collaborator: Simone Marmori, Diletta Rumi, Matteo Clerici — Consultant: Andrea Roscetti — Engineer: Borlini & Zanini SA — Views: 8.554