Sede Judicial en San Fernando is a proposal by Sol89 for Consejería de Justicia Junta de Andalucía designed in 2010. It is located in San Fernando Spain in an urban setting. Its scale is medium with a surface of 3.316 sqm.

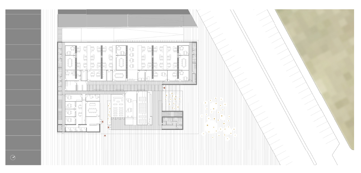
Apilamiento. Este proyecto es, sobre todo, un ensayo de almacenamiento. Las sedes judiciales son el lugar de encuentro de dos mundos: el de los actos públicos, representados por las salas de vistas, registro civil, salón de bodas…y el de los actos jurídicos: juzgados, fiscalía, archivos…. En este lugar el funcionario ejerce de maestro de ceremonias que acerca ambos universos. Entendemos que el primero de los mundos es abierto y ceremonial, por lo que proponemos espacios diáfanos, transparentes y con continuas miradas al exterior, a lo público. El segundo mundo, el del ajetreo funcionarial, aparece abarrotado de documentos, protegido y, deseablemente, ordenado, por lo que proyectamos equiparlo con una serie de muebles que, alternativamente, almacenan documentos, instalaciones y luz natural. Además, la oportunidad de un edificio como el de la nueva sede judicial es también la del lugar que lo acoge. Procuramos un lugar público de conciliación entre el edificio y la ciudad, un espacio previo que deforma el cerramiento a cota rasante, ahuecando la planta baja, para favorecer los accesos diferenciados a los distintos usos, hasta meterse dentro del edificio y provocar una honda grieta que lo atraviesa y anuncia el funcionamiento del mismo.

0542-SOL-CDZ.ES-2010 — Posted in 2012 — Explore more projects on headquarters and institutional — Climate: temperate and mediterranean — Team: María González García, Juanjo López de la Cruz — Views: 2.993