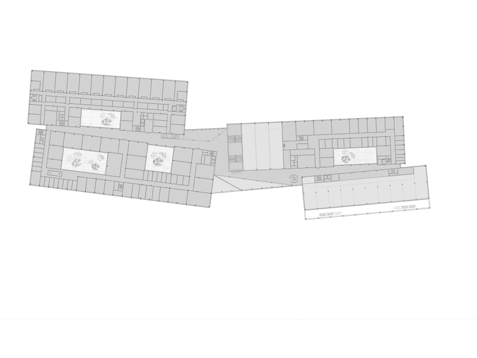
University Campus FHNW is a proposal by EM2N for Canton of Basel designed in 2011. It is located in Basel Switzerland in a railway and urban setting. Its scale is large with a surface of 34.250 sqm . Key materials are concrete and glass. Concepts such as structural praise broken volume and thick wall are explored.

The term ‘campus’ is generally associated with urban locations where research, learning, culture and housing are combined in a vibrant mix. In Muttenz although various study courses are moved together but the location is on the periphery and the functions are concentrated on a single site. To prevent a kind of ‘UFO’ developing rather than an urban place, we read the building itself as a small city, a vertically condensed campus, and articulated into individually identifiable ‘quarters’. The campus becomes a conglomerate. An internal urbanism prevents the development of an enormous moloch. A system of internal squares, streets and lanes gives each function a clear address. The interior of the large building thus becomes an exterior. The ‘buildings’ standing along the internal sequence of spaces develop internal facades, the campus becomes permeable. In contrast to the specific figure of routes, the buildings are neutral shelves. By incising courtyards spaces of different depths are created in which various programs can establish themselves. The individual parts recede to the benefit of the complex as a whole. The principle means of expression are the load-bearing structure and facade grid, as well as the overall geometry.

0544-EM2-CH-2011 — Posted in 2012 — Explore more projects on education and university — Climate: oceanic / maritime and temperate — Coordinates: 47.534497, 7.642769 — Views: 4.529