Tårn A2 Jubileum Tower is a proposal by Reiulf Ramstada designed in 2016. It is located in Göteborg Sweden in an urban setting. Its scale is large. Key materials are concrete and glass. Tomorrow collaborated as visualizer. Concepts such as tower terrace plinth and central core are explored.

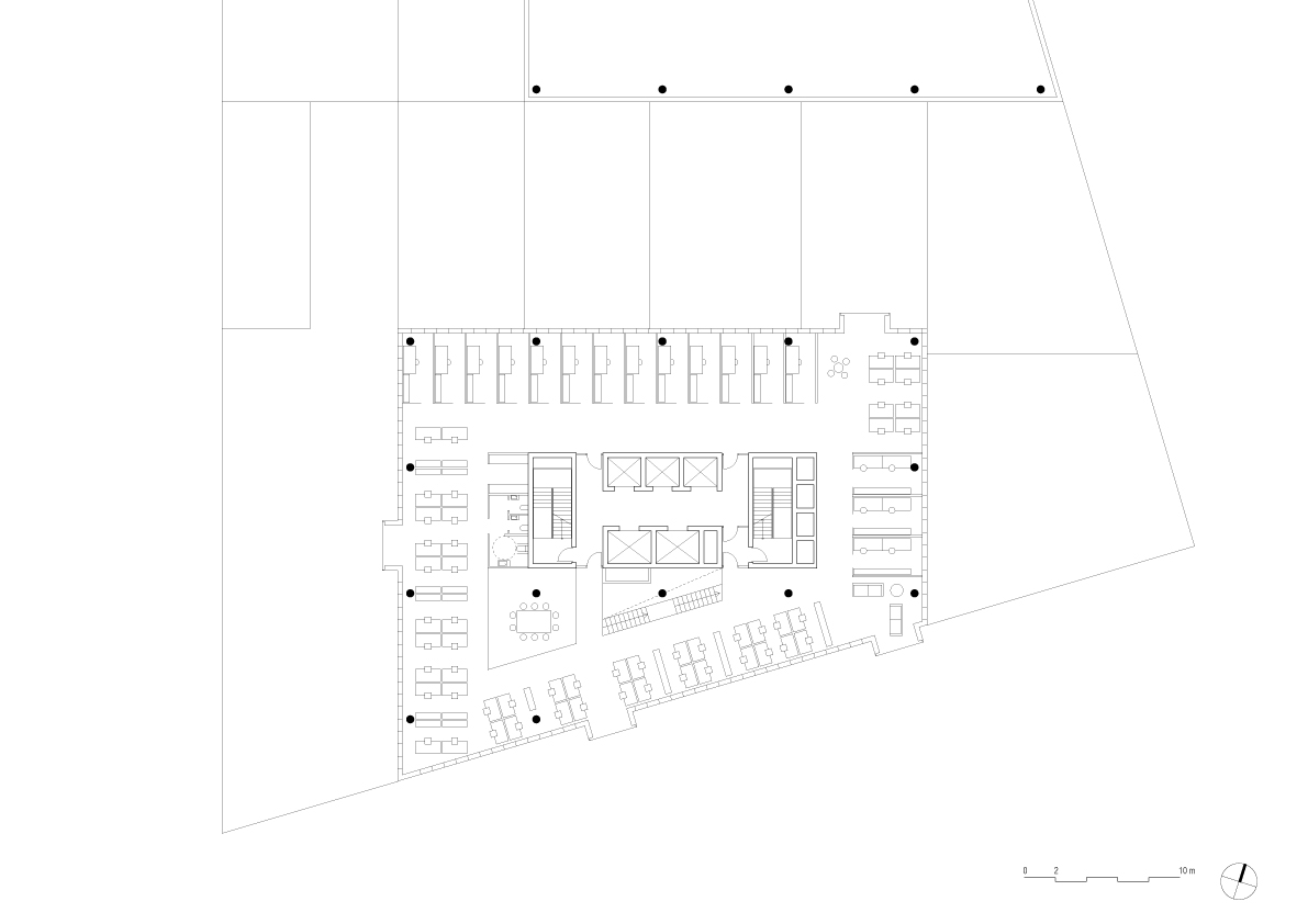
Jubileum tower is planned to be the first tower to be built in the RegionCity, the new developing site next to the railway station and the heart of Gothenburg, in Sweden. It has the ambition to become a signal building and an inviting entrance to the area of business, housing and culture infrastructures. The design of the volume represents timelessness and emphasizes the clear, robust shape with refined roof peak and representative facade niches that create a depth and play of shadows on the facades. The facilities are organized in a flexible way to provide the best conditions for professional use. Natural light, openings and connections between levels create an inspiring and welcoming working atmosphere.

1697-RRA-GTO.SE-2016 — Posted in 2016 — Explore more projects on appartment building commercial hotel mall and residential — Climate: continental and temperate — Views: 7.526