Teatro Municipal is a second prize proposal by Mmj arquitectes designed in 2005. It is located in Les Borges Blanques Spain in an old town setting. Its scale is medium. Concepts such as stripe and sloped roof are explored.

Les Borges Blanques es una pequeña capital de comarca del llano de Lérida, sustentada por una economía basada en el sector primario. La cooperativa local da trabajo a gran parte de dicha comarca. Ésta se emplaza en un conjunto enorme de naves industriales separadas del centro de la ciudad por un bello parque de trazado decimonónico, el espacio de relación más cercano al emplazamiento propuesto, ubicado a una distancia insuficiente como para poderlo servir. La calle de acceso a la cooperativa, que soporta un tráfico constante de camiones de gran tonelaje, es una de las dos que define el solar del conjunto, enclavado en una manzana que deja dos medianeras peladas como límite. La segunda calle es una calle de servicio que no va a ninguna parte. Las dos calles presentan aceras estrechas, apenas formalizadas, que resultan totalmente insuficientes para soportar el flujo de peatones que crearía un equipamiento de estas características.

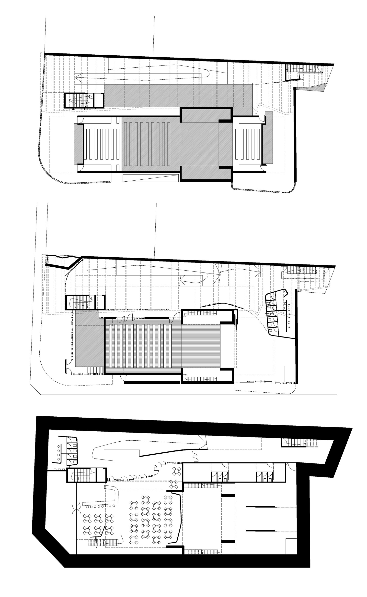
La propuesta se organiza en torno al espacio público que creíamos necesario definir para que el teatro funcione. El foyer funciona como una plaza pública. Los espacios públicos quedan protegidos del enorme tráfico de la calle principal por el cuerpo de la caja escénica y el patio de butacas. La polivalencia de todos los espacios, necesaria para rentabilizar un teatro de este tamaño en una ciudad tan pequeña, ha sido uno de los factores más trabajados del proyecto: el propio foyer, el bar, incluso los espacios de servicio que sirven al escenario, son susceptibles de usarse para representaciones de distintos tipos. El patio de butacas se dobla para permitir un aforo mayor y otro menor sin que se vea vacío.

La estructura se realiza enteramente en hormigón, tratado en superficie para conseguir controlar la acústica con su textura. Los patios de butacas se sujetan en voladizos compensados desde la propia caja escénica, tratada como un enorme pilar. Sus intersticios se tratan como porches que pueden convertir las aceras en plazas. La estructura del foyer se realiza, también, en hormigón, y se independiza completamente de la del teatro, cubriéndose con un diente de sierra para conseguir un nivel lumínico casi-exterior.

0715-MMJ-ES-2005 — Posted in 2012 — Explore more projects on auditorium and cultural — Climate: temperate and continental — Coordinates: 41.519681, 0.867459 — Team: Montserrat Farrés, Merwan Chaverra, Jaume Prat — Collaborator: Nacho Menéndez — Views: 4.216