The new Aleš South Bohemian Gallery is a proposal by Malý Chmel for České Budějovice Municipality designed in 2024. It is located in České Budějovice Czech Republic in a park setting. Its scale is medium with a surface of 5.822 sqm an estimated budget of 31.500.000 € and a ratio of 5.411 €/sqm. Key material is concrete. ZAN collaborated as visualizer. Concepts such as origami flexibility corner and monolith are explored. Review the 3 proposals for the same competition.

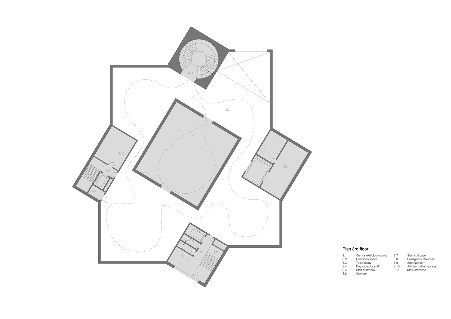
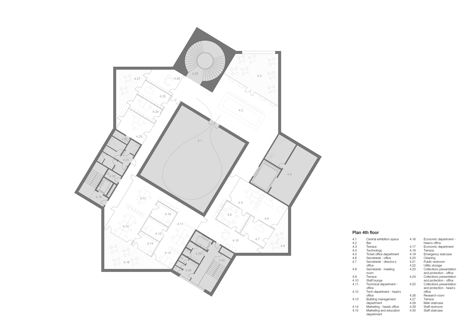
The new Aleš South Bohemian gallery represents a bold and iconic building on important place. The house is designed to face the city with only its front facades, it has no back side. The modern gallery complements the solitaires of the Museum of South Bohemia and cultural house Slavia, while respecting the context of the place. Although our approach is highly contemporary, the design is inspired by history as well, for example shape triangular bastions that once formed a fortification of the city on this plot. The floor plan of the house is based on a geometric principle interweaving of five cores and free in-between space. Four cores are intended for service and communication, the fifth serves as exhibition space and rises above the roof. The exhibition spaces are made up of a series of pentagonal rooms that seamlessly connect into each other and central orthogonal hall in the middle. Visitors during the tour discover new spaces «behind the corner». In the highest floor, the path ends with a specific higher exhibition room with northern daylight. This room is connected to the rooftop bar with a terrace and a view to the city.

0474-MLY-CZ-2024 — Posted in 2024 — Explore more projects on cultural and museum — Climate: continental and temperate — Coordinates: 48.972792, 14.478545 — Team: Zdeněk Chmel, Miroslav Chmel, Gabriela Sládečková, Jana Trunda, Jitka Vančurová, Klára Ligasová, Vojtěch Vysloužil — Views: 1.522