The path of a watercourse is an academic project by Marc Lencina for ETSA Barcelona designed in 2019. It is located in Badalona Spain in a countryside setting. Its scale is medium with a surface of 1.423 sqm. Key materials are stone and concrete.

It all started with the will to unearth an old path created by a watercourse, which used to be the main road used by farmers from the fields to the city, from the mountain to the sea.

This watercourse evolved to be one of the principal streets of the city of Badalona. Nowadays, it is the city entrance from the highway and it is tremendously interrupted when it faces the village of Canyet (today a neighbourhood of the city), hidden within Serralada de Marina natural park.

Strategy

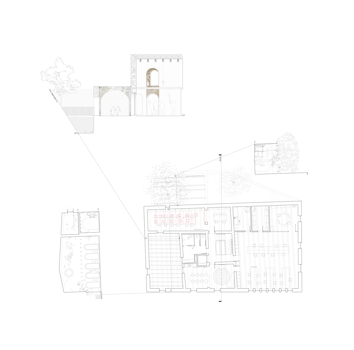
In the center of Canyet there is Can Mora, an old traditional house. It’s located on the crossroad between the water course path and one of the main paths of the park, also known as“the smuggler’s path”. Long ago, this path was used to smuggle tobacco and other goods to the city through the mountain. This project aims to give the city a space to comprehend the park’s natural riches. Therefore, this place is thought as the doorway to all the path-roads within the park.

The building itself is recognised as part of the path, from the watercourse to the park. These consecutive spaces have a two-way road function, allowing different purposes, and also, at different scales. These different purposes would be organised according to two program levels: a park level and a village level.

One

For the first level, the attention is all on nature. Willing to reintroduce the natural world to the city, this doorway acts as a captivating element: a social point that gives information, activities and resources to those interested in experiencing the park.

Two

Through time, the local neighbourhood has become motionless and inactive after the arrival of large industries and mass production. In order to re-create its identity, the use of the areas around the old house and the reactivation of the fields would create a circular movement of production-consumption- exchange. In a social perspective the relocation of modern activities (such as a theatre, a library and a plaza) inside the old house would create a gathering point in the village. As a result, the watercourse is full of life and movement again, as it used to be in the old days. Using small interventions on a physical level along the water path and adding new purposes to the old house of Can Mora will revive the space once more.

2617-LCM-BCN.ES-2019 — Posted in 2020 — Explore more project on cultural — Climate: temperate and mediterranean — Coordinates: 41.469560, 2.231084 — Consultant: Alfred Linares, Margarita Costa — Views: 3.989