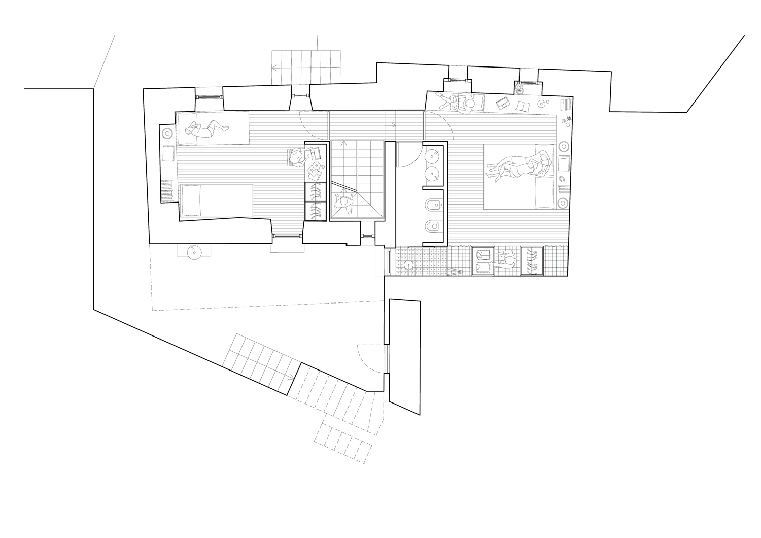
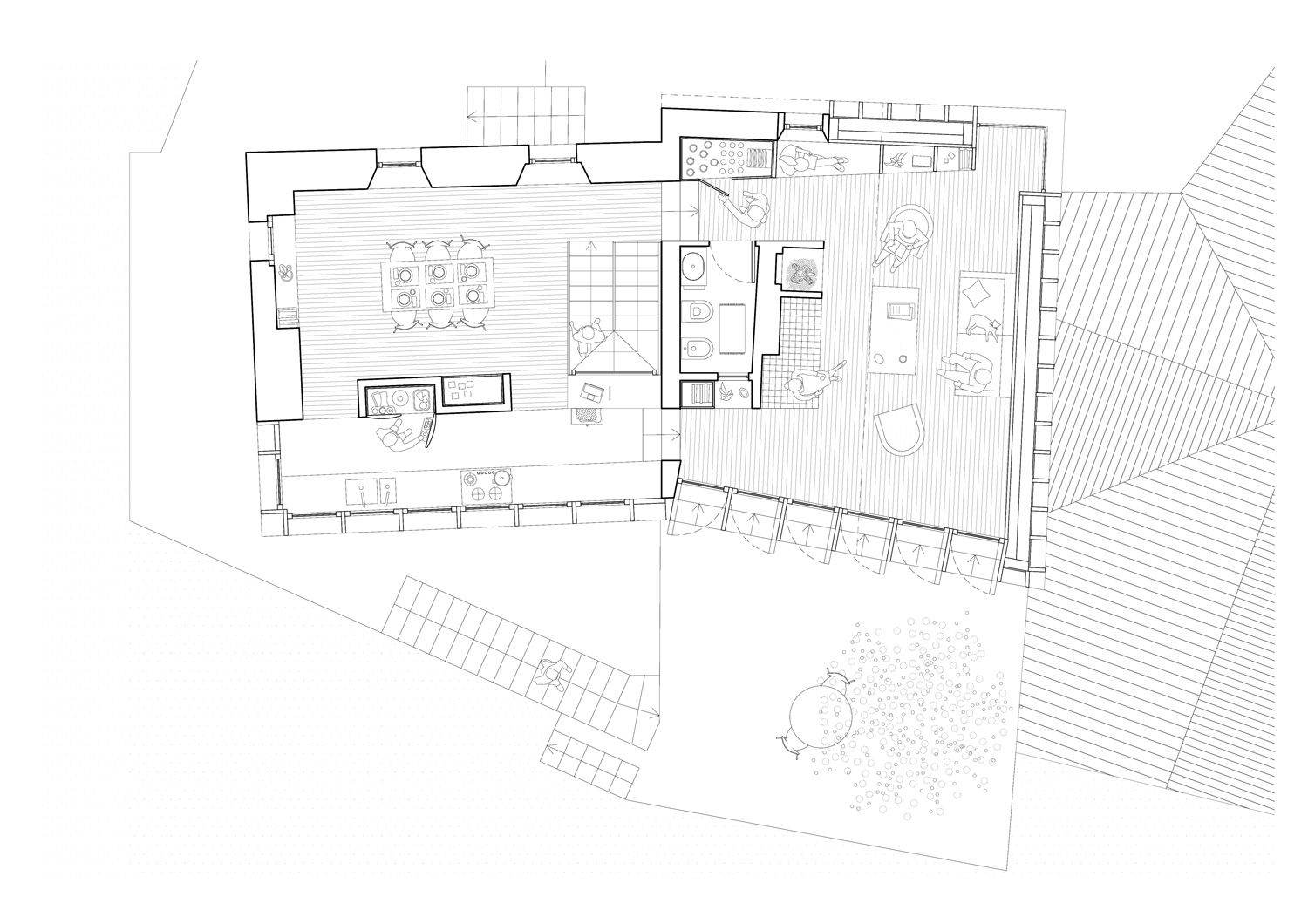
House Around the Hearth is a proposal by ATOMAA and Studio Asabesi designed in 2017. It is located in Fomarco Italy in a rural setting. Its scale is small with a surface of 213 sqm. Key materials are stone and wood.

«It must have been nice, on winter evenings, to lie on the mats before the log fire, and listen to the voice of the forest in wild talks with the wind» – Grazia Delledda, Marianna Sirca, 1915

This warm and welcoming home designed in the Italian Alps, provides living spaces centered around a large fireplace.

Throughout history, the hearth has represented the heart of the home, around which all the functions of daily life can be found. It was this idea which gave life to this project.

Designed as an addition to an existing stone building, our considered and researched intervention sits atop the existing structure and provides a contemporary interpretation of the vernacular architecture of the region.

2618-ATO-IT-2017 — Posted in 2020 — Explore more projects on house and residential — Climate: humid subtropical and temperate — Team: Umberto Maj, Daniela Serini, Eleonora Salsa, Elizaveta Ukhabina, Chantal Limonta, Philip Kolevsohn, Benedetta Vitale — Photography: Alberto Strada — Views: 14.799