Viviendas dotacionales en la calle Tánger is a proposal by Ramón Sanabria and Arquitecturia designed in 2012. It is located in Barcelona Spain in an urban setting. Its scale is small. Concepts such as courtyard and lattice are explored.

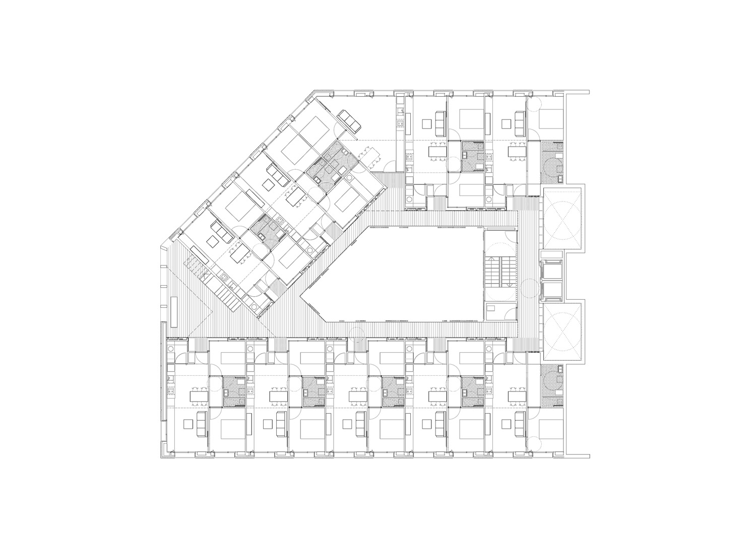
El solar de la esquina entre las calles Tánger y Àlaba, en el distrito 22@, se localiza en una zona del Ensanche con fuerte influencia industrial del Poble Nou y que se encuentra en plena transformación. Se trata de un ensanche con algunas pautas de heterodoxia con respeto al ensanche tradicional. Estas variaciones van desde la aparición de trazados oblicuos, formando pasajes, hasta la deformación de diferentes esquinas o la ruptura de la manzana clásica, ya desmontada por los equipamientos próximos al Teatre Nacional, l’Auditori  y los Nuevos Encantes.  Incluso en esta manzana se da continuidad a las dos calles laterales para generar un pasaje de peatones, que genera un bloque lineal con dos chaflanes.

Las fachadas actuales de la calle Tánger mantienen un orden tripartido con una serie de ornamentos y retiradas en su remate. Las fachadas posteriores asumen una gran domesticidad y tratamiento funcional, sin ningún tipo de enmascaramiento. En estas fachadas se ve claramente la influencia del aire industrial de esta zona del ensanche. Establecemos un diálogo y un lazo entre estos dos  lenguajes, pero desde un mismo sistema que de orden y se ligue sutilmente a las dos realidades. La voluntad es de “coser” con naturalidad. Las viviendas dotacionales están destinadas a la gente mayor, mantienen un acceso propio independiente desde la calle Tánger y ocupan las plantas superiores.

Para estos usuarios, se trata de mantener un ambiente interior agradable y socialmente agrupativo, de forma que tanto el accesos a las viviendas como las salas comunitarias constituya un espacio alrededor de un patio, donde encontrarse y relacionarse con los vecinos. Ahora hace falta mantener la intimidad de al vida privada de la vivienda. Esta dualidad entre el exterior, con la ciudad como protagonista, y el mundo interior comunitario, de mayor proximidad y relación, constituye uno de los parámetros de la propuesta, si pensamos en la gente mayor como usuaria principal del edificio.

La tipología de la vivienda se plantea con ventilación cruzada entre la calle y el patio interior, estableciendo una zona de día con doble fachada. Las viviendas se ubican en las plantas inferiores. El acceso se realiza desde el chaflán, hacia la luz que llegará desde el patio superior. Una serie de escaleras nos conducen hacia las dos plantas (altillo y primera) donde se encuentran los alojamientos, liberando la planta baja para los espacios comunitarios. Se han planteado tres tipologías de alojamiento, dando respuesta al programa funcional y con suficiente grado de flexibilidad para que se puedan hacer combinaciones entre las distintas unidades.

0072-ARQ-BCN.ES-2012 — Posted in 2013 — Explore more projects on housing and residential — Climate: temperate and mediterranean — Coordinates: 41.399956, 2.189818 — Team: Ramon Sanabria, Josep Camps, Olga Felip — Views: 3.580