Kimball Art Center is a winning proposal by Bjarke Ingels Group for Kimball Art Center designed in 2011. It is located in Park City United States in an outskirt setting. Its scale is medium with a surface of 2.800 sqm. Key material is wood. Concepts such as atrium extension symbol and twisting are explored.

In approaching the design for the new Kimball Art Center, we found great inspiration in the urban development of Park City, the Kimball site, and the city’s mining heritage. We feel the form of the new Kimball Art Center emerges where these rich stories overlap.

Park city
From plumes of smoke to plumes of man-made snow, Park City has undergone multiple transformations since miners first settled in the 1860s. Today, the new Kimball Art Center site fortuitously finds itself at the most pivotal location in Park City. At the intersection of the most socially active street – Main St – and a diagonal street that has become the doorstep to the city – Heber Ave – how can the new Kimball contextualize with these two orientations?

Landmark
As public events such as Sundance and the Kimball Art festival continue to snowball in popularity, the Kimball has the potential to become both the anchor to the street life on Main St and the gateway into the city – and in the process become a landmark for Park City. How do we define a landmark in Park City?

The silver king coalition mine building
The Coalition Building once stood just south of the Kimball site. At 80 feet tall, it towered over the town for 80 years as an iconic landmark for Park City and a monument to the mining heritage, until a fire tragically brought it down in 1982. Could the Kimball fill the void that the Coalition Building left behind? Could some of the proportions, materiality, and history of the Coalition Building be relevant to the Kimball?

New Kimball Art Center
When you ask artists what the best spaces are for exhibition, they often describe large industrial spaces because of the combination of free spans and the raw character of the surroundings. Similarly cultural and community centers need to have flexibility as well as character and personality to become a natural incubator for public life. The New Kimball is designed with this paradigm in mind – to balance the neutrality of an exhibition space with the distinctiveness of a building in Park City’s unique context and the contemporary with the industrial vernacular.

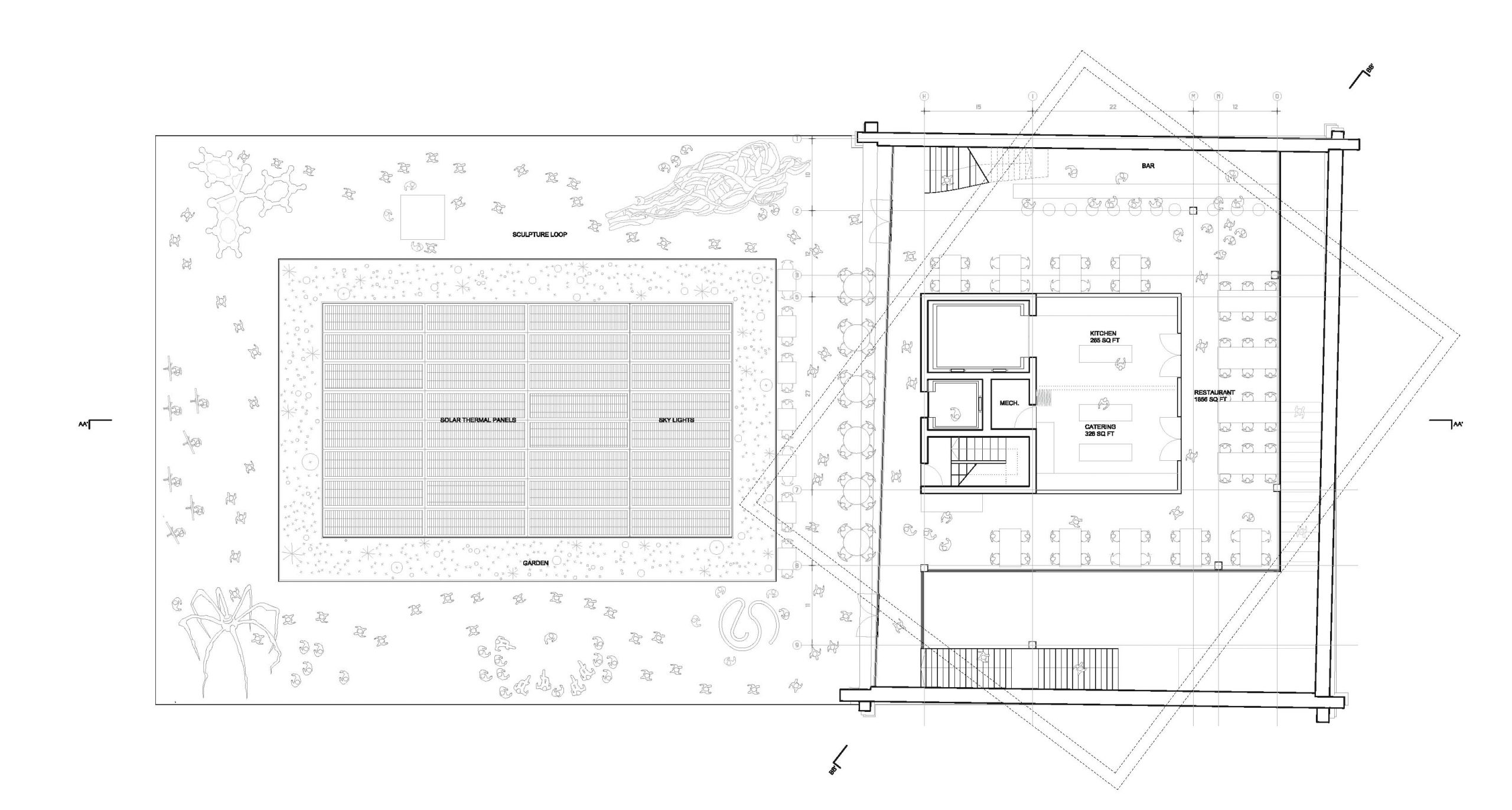
At 80 feet, the new Kimball Art Center matches the height of the former Coalition Building. The building footprint and lower gallery sit in relation to Main St and the city grid, and as it rises it turns to greet visitors entering the city via Heber Ave, creating an iconic yet contextual building at the city’s doorstep.

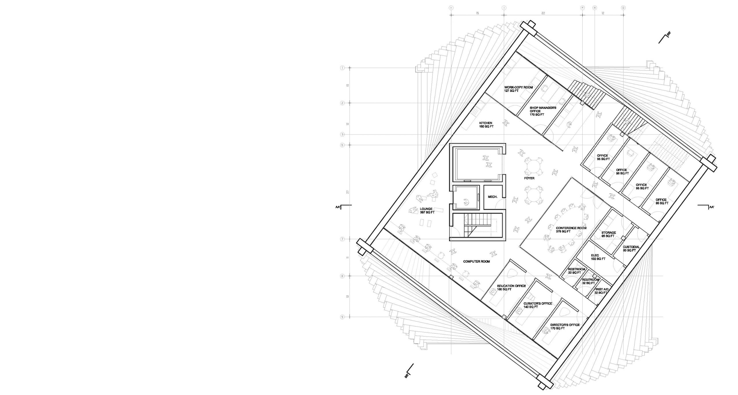
Calling back to the architecture of Park City’s mining heritage, the façade is constructed out of massive stacked timber elements, creating a public, semi-conditioned space within. The twisting façade is embedded with a continuous spiral stair internally, leading the visitor from the ground to the roof terrace 80 feet above. In the buffer space between the two galleries is the restaurant – which spills out on to the roof terrace of the existing building.

Existing Kimball Art Center
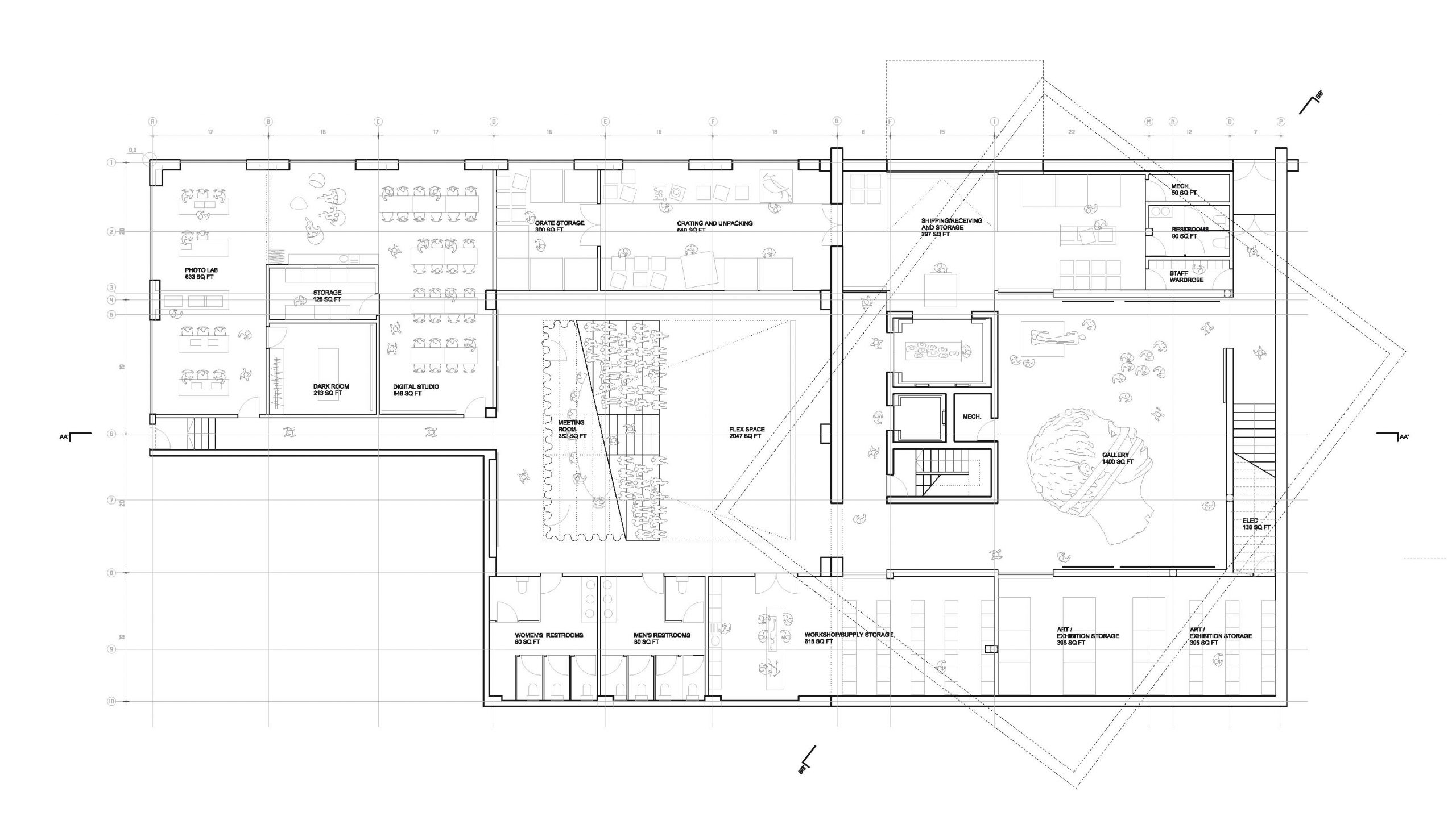
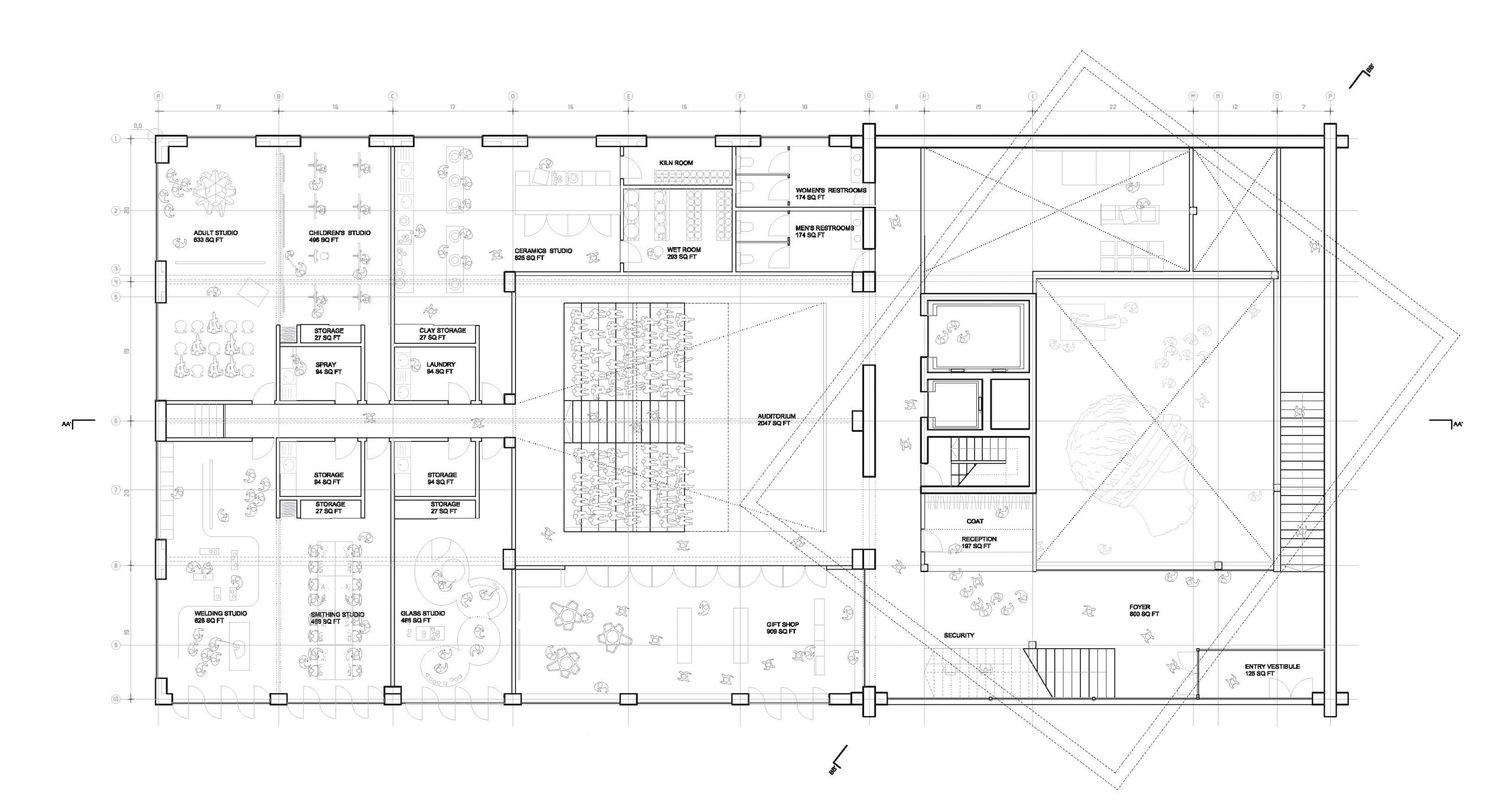
The existing building is converted into an educational hub, complementing the function of the new Art Center. At its heart is a flexible double height auditorium for screenings or a tertiary exhibition. The façade towards Heber Ave opens up to the street on summer days to expose the activities within. The roof of the existing building is equipped with solar thermal panels, which handles the heating load for the majority of the building. Indigenous plants conceal the panels. An outdoor sculpture garden loops around the perimeter of the roof.

Sustainability
The new Kimball Arts Center takes advantage of Park City’s climate and employs the natural properties of construction materials. By harnessing sources of natural heat, utilizing natural daylight, maximizing ventilation, and recycling rainwater, the building can meet a LEED platinum rating. Generous skylights and large ribbon windows flood the building with diffused natural light, greatly reducing energy costs for lighting. Operable skylights over the buffer space trigger natural stack ventilation. The administration space, with windows on both sides, have opportunity for cross ventilation. With an R-value of R-1.2/inch, the 20” deep timber naturally contains an insulative value of R-24, to create a comfortable atmosphere within. The boxes within the timber shell – housing exhibition and administration – are further insulated and moisture barriered. A solar hot water installation on the existing roof – together with ground source – provides close to all of the heating requirements for the building, at the same time heating outdoor sidewalks and terraces to melt snow.
A ground coupled heat exchanger is drilled deep into the ground in non-built areas. The heat pumps either extract heat from the circulating water (heating mode) in the winter or reject heat (cooling mode) to cool the building in the summer.

Technical narrative

Introduction
The structural concept for the new Kimball Art Center is rooted deeply in the history. The timber shell and steel interior recalls mining architecture, while the existing Kimball’s structure is preserved and retrofitted, while adding a “5th facade” of concrete on the roof. This creates three distinct structural systems in harmony -timber, steel and concrete.

Local timber was the primary construction material of the first miner settlers in Park City. Inside the mines, heavy timbers were stacked into retaining walls, and the same construction method was quickly adapted as primary structure for most residential construction. We propose what is in essence a highly-evolved log cabin – a self-sustaining stacked wood structure at an unprecedented scale, complete with embedded circulation. While historical mining buildings were constructed of wood, they often housed steel machinery. We propose the structure of the internal volumes to follow this logic – as a steel structure within a timber structure.

Gravity loading criteria
The exterior façade will consist of heavy 20” x 20” glu-lam timber sections stacked curvilinearly to form the helical shape created by the transition of the two rotated cubes. The interior core area will be a steel building with a composite floor system. Columns are placed where at the projected overlap of the top box and bottom box, such that exhibition spaces remain column-free. The floor will cantilever out to the wood shell, providing out-of-plane support for the tall wood walls where possible. The vertical circulation for the building is a spiraling timber staircase embedded into and cantilevering out from the wood shell. At these areas, the floor will not come out to the wood timbers. The exterior timber sections will be a separately designed structure, providing a completely self-supporting shell around the interior steel structure. The gradually offsetting timbers will be tied together with diagonal steel rods, effectively combining the individual pieces into one composite system capable of supporting itself.

Lateral loading criteria (seismic and wind)
Typically, seismic loads will govern the lateral design of a building of this type and location. This will be true for both principle axis of design. However, it is important that various elements of the structure be properly designed to resist the prevailing wind loads. These elements may include overhangs, roof projections, exterior cladding systems, window mullions, etc. The seismic loads enter a building by way of ground accelerations. These ground accelerations are resisted by the lateral force resisting system and other components of a building. Lateral elements should stack vertically from the top level to foundation. Preliminary layouts suggest that this will be possible.

The new building will be seismically isolated from the existing building. Accordingly, a seismic expansion joint will be required between the two buildings to allow each to move independently during a seismic event.
Due to the presence of a walk-out basement, there will likely be large lateral soil loads that will need to be resolved by adding interior structural lateral resisting elements or by providing permanent shoring at the soil side. Due to the open space desired, it would be our recommendation to provide permanent shoring to alleviate these soil lateral pressures. These soil forces and corresponding recommendations will become available once a geotechnical engineer is onboard and a report has been provided.

A preliminary layout of this building shows a central core comprised of a mechanical shaft, stairs and an elevator. This core stacks vertically throughout the entire building. As a result, the lateral stability of the building can be partially achieved by making these shaft walls concrete shear walls. In connection with the shaft shear walls, perimeter moment frames can be utilized to help stabilize exterior drift and any torsion induced during a seismic event. Moment frames provide ultimate flexibility of space utilization, as there will be no braces required. This will allow open spaces in the gallery and column free spaces in the exhibit areas.

Renovation of existing Kimball Art Center
The existing structure is to be preserved and retrofitted to meet current code requirements. In addition the roof of the old Kimball is to be topped with a slab of concrete, acting as a new “5th façade” for terrace functions. Reinforced columns with new concrete beams will span over the existing roof plane to create the new roof plane.

Proposed construction sequencing
In coordination with the selected contractor, we would propose that the steel structure be erected first since it will be stable both vertically and laterally by itself. We would then recommend that the timber shell be erected about the steel structure. There will be predetermined attachment points to the steel structure to stabilize the shell laterally. Due to the presence of the steel rods through the timbers, we would recommend that the timbers come with pre-drilled holes to allow the timbers to stack quickly in the field. At the contractor’s option, precision drilling onsite could be preferred to allow filed fitting. These timbers could be lifted and slid into place over the steel rods. Phasing has been given careful consideration.

Construction time can be minimized through largely pre-fabricated construction. Timber and steel members are prepared off site and assembled on site. The existing Kimball has been designed with minimal intervention not only to conserve the history of its architecture, but to reduce costs and construction time. Throughout construction of the new Kimball and the renovation of the old, all functions of the Art Center are to remain operational. This can be achieved by giving flexibility to programs. The lower exhibition level of the new Kimball and its surrounding support spaces can double as education facilities while the existing building undergoes renovation. To allow for further flux, the restaurant area can be condensed to accommodate exhibitions within the void space.

Design methodology

At the core of our design methodology is our ability to think and work collaboratively. A strong team allows us to challenge ourselves in search of innovative ideas that respond to pragmatic conditions, resulting in architecture better than we could have imagined ourselves.

Collaboration with cliente
Close collaboration with the client is crucial to tailoring a product that will ensure the prolonged success of the new Kimball Art Center. We believe in the power of dialogue to inspire each other and ensure that all requirements and needs are met through all stages of the project. To achieve the best discussions and the most precise communication, we work simultaneously with drawings, physical models and computer visualization. The aim is to turn vague feelings or intuitions into precise tools and benchmarks for future development. We also understand that the materials we produce are an essential element to fundraising. Our drawings, models, and videos are ideal for this purpose and successfully communicate both the client’s goals and our design ideas.

Collaboration with local architect
During the competition process, BIG has enjoyed a fruitful collaboration with the local Salt Lake City office Architectural Nexus. We hope to continue this collaboration in subsequent phases of the project. For Schematic Design and Design Development phases, BIG will continue to drive design as NEXUS will make recommendations concerning zoning, regulations, and local building techniques, while ensuring frequent personal contact with the client, city, and local consultants. Between the Design Development and Construction Document phases, responsibility will shift to NEXUS. Bjarke Ingels and BIG will follow the project closely throughout the process until completion.

Collaboration with consultants
Also during the competition, BIG and NEXUS have worked closely with local consultants to gain valuable input that has help shape and bolster the design. We feel their continued involvement would be invaluable to the technical success of the new Kimball Art Center. They include Dunn Associates (structural), Van Boerum & Frank Associates (mechanical), and Envision Engineering (electrical).

Coordination with city planning
“Since its beginning, Park City has been closely bound to the development of new industries in Utah – first mining and then recreation. These activities have left their mark in the buildings and neighborhoods of Park City.” (Park City HDDR Guidelines). The connection of the present to the past in Park City runs deep. The remarkable attention to maintaining connections to the past is reflected in the Park City processes and guidelines for buildings and development. Architectural NEXUS’ experience in working with Park City on issues of varying scales from the macro to the micro have been an exercise in evolving the processes as Park City moves into the future. Through the design process of the Park City Medical Center NEXUS walked with Park City planning and government through annexation, campus development guidelines, a new zoning ordinance and ultimately a smooth design approval process. NEXUS was instrumental in the process of the development of a new industry in Park City that created a new vision that has proven to be very successful.

Our experience shows that early involvement of key officials streamlines the design process from a design, cost and schedule perspective, and allows greater flexibility. For example, in designing The Mountain, a residential project in Copenhagen, BIG successfully convinced the city officials to shift from a simple twoblock scheme to a layered one. In the end, the merging of parking and housing ensured that no resident had a view directly into a parking structure. The building has become an icon of a new generation of architecture in Copenhagen.

We have given Park City code restrictions an early consideration. The building will be constructed as a type IIIA construction with increases in area and height for fire sprinkling giving an allowable height of 85 feet. The building is primarily and educational facility with a B occupancy with a secondary A-3 occupancy for the  gallery spaces.

Public involvement
Bringing a community together around a new vision is critical to the successful development of a city’s future. We have extensive experience in leading workshops and conducting user surveys, and both BIG and NEXUS have been very successful in connecting people to their communities through architecture. In Copenhagen, BIG has built a park in the most ethnically diverse neighborhood of the city by asking the community to suggest their most cherished pieces of urban furniture from their home country. More than  architects, we became curators for a wildly diverse parkscape with objects from 60 countries. In another example, BIG was involved in the biggest of public arenas, by successfully defending the right of the Little Mermaid sculpture to travel to China for the Shanghai Expo Pavilion. We feel projects always emerge from the public process stronger and richer than previously conceived, and we hope to have the opportunity to engage with the Park City public for the new Kimball Art Center.

0348-BIG-US-2011.14 — Posted in 2012 — Explore more projects on cultural and cultural center — Climate: humid subtropical and temperate — Coordinates: 40.660981, -111.503661 — Co-author: NEXUS — Engineer: Van Boerum & Frank Associates — Structural engineer: Dunn Associates — Views: 13.483