Musée Cantonal des Beaux-arts is a proposal by EM2N for Canton of Vaud and Ville de Lausanne designed in 2011. It is located in Lausanne Switzerland in a railway and urban setting. Its scale is medium. Key materials are concrete and stone. Concepts such as atrium adaptable reuse broken volume and stratification are explored. Review the 5 proposals for the same competition.

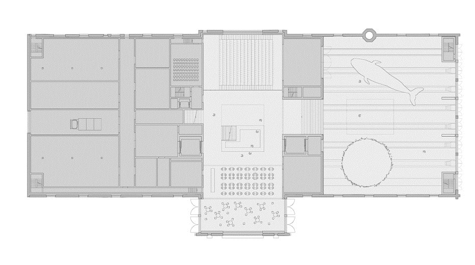
The new museum is at a fantastic location on one of the most public and central places in Lausanne. It connects with the Place de la Gare to form a large terrace. Proximity of this kind between an infrastructural and a cultural centre presents enormous chances. This led us to interpret the envisaged ‘Espace projet’ in a proactive way. We imagine a place where museum and society interact perma-nently; a place that brings art out into the city and invites the city to enter the museum. The ‘Espace projet’ thus becomes an interface space – it is entrance, exhibition area and public space at one and the same time. The existing hall with its powerful spatial disposition forms the starting point for a new building. This is a building resting on a building. The appearance is shaped by the explicit reference made to the shape of the roof and gable of the existing building. An adaptation based on reduction and abstraction forms the basis for a symbiotic relationship. The formal strength of the new building is unimaginable without that of the old one. Past and present are inscribed as a plinth that yet also appears as an independent building.

0545-EM2-QLS.CH-2011 — Posted in 2012 — Explore more projects on cultural and museum — Climate: oceanic / maritime and temperate — Coordinates: 46.517958, 6.625213 — Views: 3.624