National Museum in Östersund is a proposal by Henning Larsen for NORR designed in 2015. It is located in Östersund Sweden in an outskirt setting. Its scale is medium. Key material is wood. Concepts such as extension and zenithal light are explored.

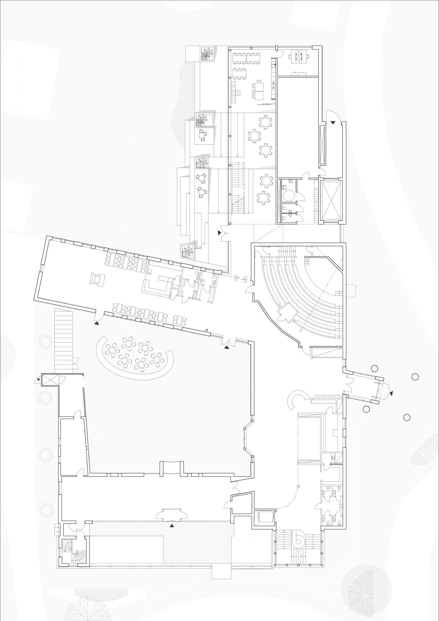
The new NORR – National Museum will act both as an addition to the existing Jamtli Museum in Östersund, and form a new branch of the Swedish National Museum. The new building will have a large exhibition hall, workshops, offices and café, contributing new amenities and attractions to an already established art centre. The vision is to create a unique and flexible exhibition hall, which adds a new architectonic layer to the Jamtli museum. “The new exhibition hall is designed as wooden sculpture with an easily recognisable silhouette against the sky. The roof is quite remarkable because the deep skylights filter the soft northern daylight directly into the exhibition space. This gives a very sensitive light as well as a view to the sky,” says Søren Øllgaard, partner at Henning Larsen Architects and design responsible for the project. The new building draws inspiration from the context through scale and materials, giving it a respectful approach to its surroundings. A strong connection to the existing Jamtli Museum is created by a logical and functional flow. In turn this creates a common identity, forming a strong and vibrant art centre on both a regional and national level.

1146-HEN-SE-2015.18 — Posted in 2015 — Explore more projects on cultural and museum — Climate: continental and temperate — Coordinates: 63.187142, 14.636238 — Views: 4.072