Urban District R5.3 Bertalia Lazzaretto is a proposal by LCA Architetti and Dunamis Architettura for Comune Bologna designed in 2024. It is located in Bologna Italy in an outskirt setting. Its scale is large with a surface of 10.151 sqm an estimated budget of 17.200.000 € and a ratio of 1.694 €/sqm. Key materials are vegetal and wood. Mograph Studio collaborated as visualizer. Concepts such as aggregation cells gallery folded facade fragmentation new development structural praise sustainability and thick wall are explored.

The intervention area, approximately 73 hectares in size, is in the north-western outskirts of the city of Bologna, and is bordered to the south by “via del Lazzaretto”, to the east by “via Terracini”, to the west by a section of disused railway line and north of the historic core of the village of Bertalia. The small town underwent significant expansion after the war and with the construction of new residential buildings to meet the growing housing demand, the area went from a predominantly rural area to a residential neighbourhood. The creation of the so-called «People Mover», a rail infrastructure for the fast connection between the AV station and Guglielmo Marconi airport, has made the area even more attractive.

Masterplan

The proposal described below involves the creation of a sustainable neighborhood through an innovative solution in the modelling of the built environment, which aims to enhance the solar contribution both on the buildings and on the open spaces through a wise balance between «urbanized» soil and natural component. Unlike the original model, the proposed one has an open planimetric system capable of creating interconnections with neighboring territorial areas. The connection to basic services and adjacent communities is enhanced through infrastructure efficiency and the promotion of urban multifunctionality extended to all components of the neighborhood.

Building system

The masterplan created by the architect Piero Sartogo’s team provides a framework aimed at qualifying the neighborhood as an area surrounded by green belts. The major critical issues that emerged from our analysis concern the lack of dialogue of the fabric with the nearby pre-existing settlements. The closure, in the southern corners, of some of the blocks constituting the insulae and the orientation of the long ‘slat’ bodies that delimit the boulevard urban along the east-west direction with the consequent and unfavourable north-south orientation of the imposing main fronts. These characteristics oriented the design choices from the early stages towards the search for shapes and volumes capable of maximizing the penetration of daylight on the neighborhood spaces.

Open space system

The neighborhood square is a place of meeting and cultural exchange. It is characterized by a mineral continuity that integrates with the ground floors of the surrounding buildings. This can host temporary and cultural events, or simply offer a place of relaxation and leisure for citizens. The sports forest is an ecosystem that includes clearings, paths and open areas intended for recreational activities. These spaces can accommodate sports fields, picnic areas, and fitness equipment or offer a quiet place for a rejuvenating walk. The linear park is conceived in antisymmetric terms that contrast two different souls: a larger part, densely tree-lined to create fragments of lowland forest capable of generating a favorable microclimate during the hot seasons, and an active and open area, which hosts play areas, elements of water, equipped recreational spaces and climate responsive for future tenants of all ages. The courtyard gardens, are designed as community green areas that enrich the urban fabric and offer an oasis of tranquility for residents. The pedestrian path system offers a safe and pleasant alternative to car use, promoting walking and socialization among residents. In all areas of the master plan, the project envisaged the use of urban drainage techniques, with the aim of sustainable management of rainwater. Linear bioswales have been positioned near the larger paved areas. In the linear park and especially in its extension to the north it was decided to use the rain garden technique.

Compositional and functional aspects

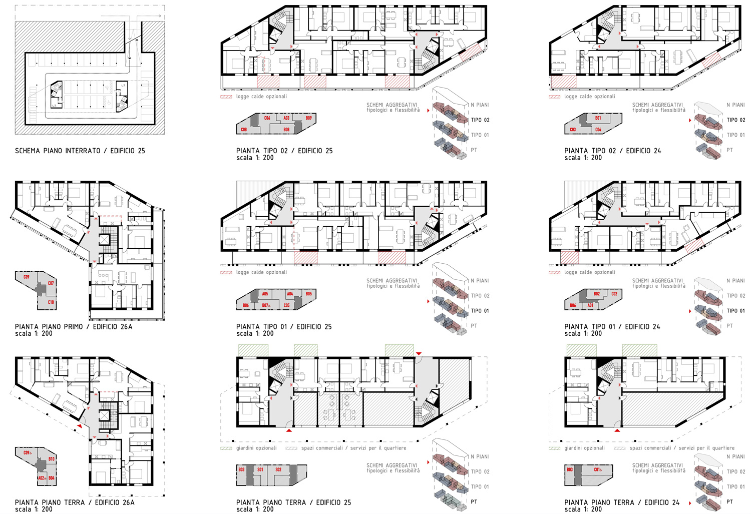
The master plan represents the conceptual basis from which both the general structure of the urban project and the architecture of the individual buildings derive. The broken lines, which extend from the plan to the elevation, create a dynamic architectural context, capable of modeling trapezoidal shapes that give a distinctive identity to the buildings. The genealogical reference to the geometries of the ancient wooden porticoes that characterize the historic center of Bologna inspires the architectural frame that protects and envelops the buildings fronts open to the south. The reference to the local architectural tradition is found in the material choices, proposing coverings in klinker tiles with a matt finish which, due to their tones and interaction with the light, recall brick facades. Regarding the functional organization, breaking the rigidity of the long buildings creates a design language that is more in tune with the surrounding area. A further benefit of the staggered volume structure is the possibility of having a double or triple view for most of the apartments.

Types

Accommodations are of different types: 15 two-room apartments, 30 three-room apartments, 20 four-room apartments and 2 accommodations with studio/atelier; the remaining non-residential surfaces on the ground floor host commercial activities and/or social services for the neighborhood.

Quality of spaces

The new proposal intends to overcome the limit of the old urban layout by proposing non-orthogonal cuts on the short sides; this operation reduces cones and shadow areas, increasing the light input and solar radiation in apartments with double or triple facing. The internal distribution of the apartments is based on a clear division between the living area and the sleeping area; the only functional exceptions concern the design of specific homes for users with particular needs. The attention to the needs of disadvantaged users that the project proposal addressed and resolved makes the intervention truly inclusive. The apartments that host larger families have the possibility of expanding their living space by creating warm loggias (considered optional at this stage) in correspondence with the living rooms. The external spaces belonging to each island have been redesigned as courtyards designed with green areas and the planting of new trees and small shrubs; the presence of «natural» areas reduces heat island effect, does not compromise the permeability of the soil, raises the general level of well-being of people, favors rest, relationships and meetings.

0152-DUM.LCA-BLQ.IT-2024 — Posted in 2024 — Explore more projects on housing and residential — Climate: humid subtropical and temperate — Coordinates: 44.517640, 11.312893 — Collaborator: Giuseppe Benso, Francesca Palmerini, Ailar Sajjadi — Consultant: B.Cube Srl, United Consulting Engineering, ErreVia Srl — Landscape: Matteo Motti — Views: 2.062